Elected Officials
Courts
Departments
Initiatives
Open Government
About
Login / Register
Home
/
Property & Tax Records
/
Property Records
/
Property & Tax Search
/
Parcel Profile
/
Print View
Search for Another Parcel
Parcel Profile
Historical Card
Sketches
Photos
Tax Map
Taxes
Print View
Print This Page
Address: 1118 E 24 ST
Parcel: 18050093021000
Parcel Profile
Address
1118 | E | 24 | ST
Street Status
PAVED | SIDEWALK
School District
CITY OF ERIE SCHOOL
Acreage
0.0735
Classification
R
Land Use Code
TWO FAMILY
Legal Description
1118 E 24 ST 40 X 80
Square Feet
2032
Topo
LEVEL
Utility
ALL PUBLIC
Zoning
Please contact your municipal zoning officer
Deed Book
1530
Deed Page
0642
2025 Tax Values
Land Value / Taxable
5,200 / 5,200.00
Building Value / Taxable
20,870 / 20,870.00
Total Value / Taxable
26,070 / 26,070.00
Clean & Green
Inactive
Homestead Status
Inactive
Farmstead Status
Inactive
Lerta Amount
0
Lerta Expiration Year
0
Residential Data
Card 1
Style
OLD STYLE
Basement
FULL
Year Built
1893
Exterior Wall
COMPOSITION
Total Living Area
2032
Full Baths
2
Half Baths
0
Fuel Type
GAS
Heating
CENTRAL
Heating System
FORCED AIR
Stories
2.0
Total Bedrooms
4
Total Family Rooms
0
Total Rooms
6
Fireplaces
0
Other Buildings & Yards
No OBY Data Found
Sales History
Sale Date
Type
Price
Book / Page
Other Info
11/6/2008
LAND & BUILDING
22000
1530 / 0642
DEED
10/22/1996
0
0467 / 0880
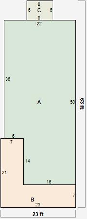
Parcel Sketches
Residential Card 1
A
MAIN
1016 square feet
B
WDDCK WOOD DECKS
259 square feet
C
EFP ENCL FRAME PORCH EFP ENCL FRAME PORCH
48 square feet
Parcel Images