Elected Officials
Courts
Departments
Initiatives
Open Government
About
Login / Register
Home
/
Property & Tax Records
/
Property Records
/
Property & Tax Search
/
Parcel Profile
/
Print View
Search for Another Parcel
Parcel Profile
Historical Card
Sketches
Photos
Tax Map
Taxes
Print View
Print This Page
Address: 2117 WARFEL AVE
Parcel: 18050094010400
Parcel Profile
Address
2117 | WARFEL | AVE
Street Status
PAVED | SIDEWALK
School District
CITY OF ERIE SCHOOL
Acreage
0.0638
Classification
R
Land Use Code
SINGLE FAMILY
Legal Description
2117 WARFEL AVE 40 X IRR
Square Feet
1206
Topo
LEVEL
Utility
ALL PUBLIC
Zoning
Please contact your municipal zoning officer
Deed Book
2025
Deed Page
009852
2025 Tax Values
Land Value / Taxable
4,800 / 4,800.00
Building Value / Taxable
28,070 / 28,070.00
Total Value / Taxable
32,870 / 32,870.00
Clean & Green
Inactive
Homestead Status
Active
Farmstead Status
Inactive
Lerta Amount
0
Lerta Expiration Year
0
Residential Data
Card 1
Style
BUNGALOW
Basement
FULL
Year Built
1890
Exterior Wall
ALUMINUM/VINYL
Total Living Area
1206
Full Baths
1
Half Baths
0
Fuel Type
GAS
Heating
CENTRAL
Heating System
FORCED AIR
Stories
1.0
Total Bedrooms
2
Total Family Rooms
0
Total Rooms
5
Fireplaces
0
Other Buildings & Yards
No OBY Data Found
Sales History
Sale Date
Type
Price
Book / Page
Other Info
6/18/2025
LAND & BUILDING
5000
2025 / 009852
FIDUCIARY DEED
5/4/1998
0
0558 / 1448
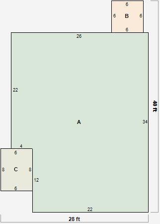
Parcel Sketches
Residential Card 1
A
MAIN
836 square feet
B
1S FR ONE STORY FRAME
36 square feet
C
OFP OPEN FRAME PORCH
48 square feet
Parcel Images