Elected Officials
Courts
Departments
Initiatives
Open Government
About
Login / Register
Home
/
Property & Tax Records
/
Property Records
/
Property & Tax Search
/
Parcel Profile
/
Print View
Search for Another Parcel
Parcel Profile
Historical Card
Sketches
Photos
Tax Map
Taxes
Print View
Print This Page
Address: 1218 E 21 ST
Parcel: 18051001022900
Parcel Profile
Address
1218 | E | 21 | ST
Street Status
PAVED | SIDEWALK
School District
CITY OF ERIE SCHOOL
Acreage
0.0771
Classification
R
Land Use Code
SINGLE FAMILY
Legal Description
1218 E 21 ST 32 X 105
Square Feet
1144
Topo
LEVEL
Utility
ALL PUBLIC
Zoning
Please contact your municipal zoning officer
Deed Book
2021
Deed Page
003979
2026 Tax Values
Land Value / Taxable
5,100 / 5,100.00
Building Value / Taxable
12,140 / 12,140.00
Total Value / Taxable
17,240 / 17,240.00
Clean & Green
Inactive
Homestead Status
Inactive
Farmstead Status
Inactive
Lerta Amount
0
Lerta Expiration Year
0
Residential Data
Card 1
Style
OLD STYLE
Basement
FULL
Year Built
1900
Exterior Wall
ALUMINUM/VINYL
Total Living Area
1144
Full Baths
1
Half Baths
0
Fuel Type
GAS
Heating
CENTRAL
Heating System
FORCED AIR
Stories
2.0
Total Bedrooms
3
Total Family Rooms
0
Total Rooms
6
Fireplaces
0
Other Buildings & Yards
Description
Built
Width
Length
Area
FRAME OR CB DETACHED GARAGE
1959
16
22
352
Sales History
Sale Date
Type
Price
Book / Page
Other Info
2/19/2021
LAND & BUILDING
15000
2021 / 003979
SPECIAL WARRANTY DEED
7/31/2006
LAND & BUILDING
12000
1348 / 1569
WARRANTY/SURVIVORSHIP DEED
7/20/2001
0
0794 / 0248
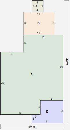
Parcel Sketches
Residential Card 1
A
MAIN
528 square feet
B
1S FR ONE STORY FRAME
88 square feet
C
OFP OPEN FRAME PORCH
16 square feet
D
EFP ENCL FRAME PORCH
73 square feet
Parcel Images
Please note:
this tab is for informational purposes only and may not show all delinquencies, see the Taxes tab for more accurate delinquent taxes due.