Elected Officials
Courts
Departments
Initiatives
Open Government
About
Login / Register
Home
/
Property & Tax Records
/
Property Records
/
Property & Tax Search
/
Parcel Profile
/
Print View
Search for Another Parcel
Parcel Profile
Historical Card
Sketches
Photos
Tax Map
Taxes
Print View
Print This Page
Address: 1245 E 22 ST
Parcel: 18051002030700
Parcel Profile
Address
1245 | E | 22 | ST
Street Status
PAVED | SIDEWALK
School District
CITY OF ERIE SCHOOL
Acreage
0.0964
Classification
R
Land Use Code
SINGLE FAMILY
Legal Description
1245 E 22 ST 40 X 105
Square Feet
1300
Topo
LEVEL
Utility
ALL PUBLIC
Zoning
Please contact your municipal zoning officer
Deed Book
0945
Deed Page
1400
2026 Tax Values
Land Value / Taxable
5,400 / 5,400.00
Building Value / Taxable
28,310 / 28,310.00
Total Value / Taxable
33,710 / 33,710.00
Clean & Green
Inactive
Homestead Status
Inactive
Farmstead Status
Inactive
Lerta Amount
0
Lerta Expiration Year
0
Residential Data
Card 1
Style
OLD STYLE
Basement
FULL
Year Built
1888
Exterior Wall
ALUMINUM/VINYL
Total Living Area
1300
Full Baths
1
Half Baths
0
Fuel Type
GAS
Heating
CENTRAL
Heating System
FORCED AIR
Stories
2.0
Total Bedrooms
3
Total Family Rooms
0
Total Rooms
6
Fireplaces
0
Other Buildings & Yards
No OBY Data Found
Sales History
Sale Date
Type
Price
Book / Page
Other Info
11/15/2002
LAND & BUILDING
29000
0945 / 1400
9/13/1983
0
1509 / 0174
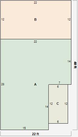
Parcel Sketches
Residential Card 1
A
MAIN
518 square feet
B
UNFIN BSMT BASEMENT UNFINISHED 1S FR ONE STORY FRAME
264 square feet
C
EFP ENCL FRAME PORCH
72 square feet
Parcel Images
Please note:
this tab is for informational purposes only and may not show all delinquencies, see the Taxes tab for more accurate delinquent taxes due.