Elected Officials
Courts
Departments
Initiatives
Open Government
About
Login / Register
Home
/
Property & Tax Records
/
Property Records
/
Property & Tax Search
/
Parcel Profile
/
Print View
Search for Another Parcel
Parcel Profile
Historical Card
Sketches
Photos
Tax Map
Taxes
Print View
Print This Page
Address: 2219 WARFEL AVE
Parcel: 18051002031600
Parcel Profile
Address
2219 | WARFEL | AVE
Street Status
PAVED | SIDEWALK
School District
CITY OF ERIE SCHOOL
Acreage
0.2129
Classification
R
Land Use Code
SINGLE FAMILY
Legal Description
2219 WARFEL AVE IRREG
Square Feet
892
Topo
LEVEL
Utility
ALL PUBLIC
Zoning
Please contact your municipal zoning officer
Deed Book
2022
Deed Page
010230
2026 Tax Values
Land Value / Taxable
6,200 / 6,200.00
Building Value / Taxable
15,920 / 15,920.00
Total Value / Taxable
22,120 / 22,120.00
Clean & Green
Inactive
Homestead Status
Inactive
Farmstead Status
Inactive
Lerta Amount
0
Lerta Expiration Year
0
Residential Data
Card 1
Style
BUNGALOW
Basement
PART
Year Built
1893
Exterior Wall
ALUMINUM/VINYL
Total Living Area
892
Full Baths
1
Half Baths
0
Fuel Type
GAS
Heating
CENTRAL
Heating System
FORCED AIR
Stories
1.0
Total Bedrooms
2
Total Family Rooms
0
Total Rooms
5
Fireplaces
0
Other Buildings & Yards
No OBY Data Found
Sales History
Sale Date
Type
Price
Book / Page
Other Info
5/13/2022
LAND & BUILDING
0
2022 / 010230
FIDUCIARY DEED
10/22/2004
LAND & BUILDING
15000
1183 / 0990
WARRANTY/SURVIVORSHIP DEED
2/13/2004
LAND & BUILDING
8000
1107 / 1043
WARRANTY/SURVIVORSHIP DEED
11/13/1978
0
1328 / 0561
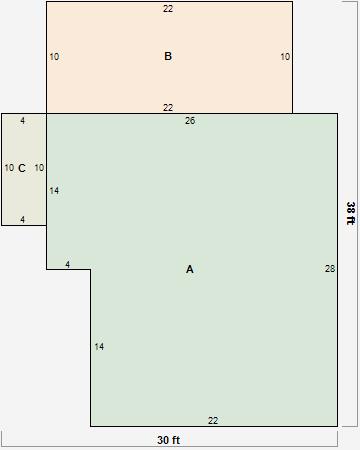
Parcel Sketches
Residential Card 1
A
MAIN
672 square feet
B
1S FR ONE STORY FRAME
220 square feet
C
EFP ENCL FRAME PORCH
40 square feet
Parcel Images
Please note:
this tab is for informational purposes only and may not show all delinquencies, see the Taxes tab for more accurate delinquent taxes due.