Elected Officials
Courts
Departments
Initiatives
Open Government
About
Login / Register
Home
/
Property & Tax Records
/
Property Records
/
Property & Tax Search
/
Parcel Profile
/
Print View
Search for Another Parcel
Parcel Profile
Historical Card
Sketches
Photos
Tax Map
Taxes
Print View
Print This Page
Address: 1222 E 26 ST
Parcel: 18051003011900
Parcel Profile
Address
1222 | E | 26 | ST
Street Status
PAVED | SIDEWALK
School District
CITY OF ERIE SCHOOL
Acreage
0.1331
Classification
R
Land Use Code
SINGLE FAMILY
Legal Description
1222 E 26 ST 40 X 145
Square Feet
1576
Topo
LEVEL
Utility
ALL PUBLIC
Zoning
Please contact your municipal zoning officer
Deed Book
2022
Deed Page
005806
2026 Tax Values
Land Value / Taxable
5,800 / 5,800.00
Building Value / Taxable
36,100 / 36,100.00
Total Value / Taxable
41,900 / 41,900.00
Clean & Green
Inactive
Homestead Status
Active
Farmstead Status
Inactive
Lerta Amount
0
Lerta Expiration Year
0
Residential Data
Card 1
Style
OLD STYLE
Basement
FULL
Year Built
1900
Exterior Wall
ALUMINUM/VINYL
Total Living Area
1576
Full Baths
1
Half Baths
0
Fuel Type
GAS
Heating
CENTRAL
Heating System
HOT WATER
Stories
2.0
Total Bedrooms
4
Total Family Rooms
0
Total Rooms
8
Fireplaces
0
Other Buildings & Yards
No OBY Data Found
Sales History
Sale Date
Type
Price
Book / Page
Other Info
3/18/2022
LAND & BUILDING
0
2022 / 005806
DEED
1/8/1998
0
0537 / 0848
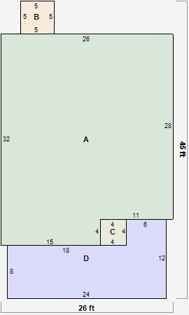
Parcel Sketches
Residential Card 1
A
MAIN
788 square feet
B
EFP ENCL FRAME PORCH
25 square feet
C
EFP ENCL FRAME PORCH
16 square feet
D
OFP OPEN FRAME PORCH
216 square feet
Parcel Images
Please note:
this tab is for informational purposes only and may not show all delinquencies, see the Taxes tab for more accurate delinquent taxes due.