Elected Officials
Courts
Departments
Initiatives
Open Government
About
Login / Register
Home
/
Property & Tax Records
/
Property Records
/
Property & Tax Search
/
Parcel Profile
/
Print View
Search for Another Parcel
Parcel Profile
Historical Card
Sketches
Photos
Tax Map
Taxes
Print View
Print This Page
Address: 2921 FLORENCE AVE
Parcel: 18051005011300
Parcel Profile
Address
2921 | FLORENCE | AVE
Street Status
PAVED | SIDEWALK
School District
CITY OF ERIE SCHOOL
Acreage
0.2368
Classification
R
Land Use Code
SINGLE FAMILY
Legal Description
2921 FLORENCE AVE 79.5X129.75
Square Feet
1416
Topo
LEVEL
Utility
ALL PUBLIC
Zoning
Please contact your municipal zoning officer
Deed Book
1419
Deed Page
1569
2026 Tax Values
Land Value / Taxable
19,300 / 19,300.00
Building Value / Taxable
25,300 / 25,300.00
Total Value / Taxable
44,600 / 44,600.00
Clean & Green
Inactive
Homestead Status
Inactive
Farmstead Status
Inactive
Lerta Amount
0
Lerta Expiration Year
0
Residential Data
Card 1
Style
BUNGALOW
Basement
CRAWL
Year Built
1930
Exterior Wall
ALUMINUM/VINYL
Total Living Area
1416
Full Baths
1
Half Baths
0
Fuel Type
GAS
Heating
CENTRAL
Heating System
FORCED AIR
Stories
1.0
Total Bedrooms
3
Total Family Rooms
0
Total Rooms
5
Fireplaces
0
Other Buildings & Yards
No OBY Data Found
Sales History
Sale Date
Type
Price
Book / Page
Other Info
5/30/2007
LAND & BUILDING
29900
1419 / 1569
DEED
3/30/2007
LAND & BUILDING
0
1405 / 0484
SHERIFF'S DED
3/22/2005
LAND & BUILDING
30000
1219 / 0550
WARRANTY/SURVIVORSHIP DEED
6/10/2002
LAND & BUILDING
17510
888 / 2063
2/13/2002
LAND & BUILDING
0
853 / 1417
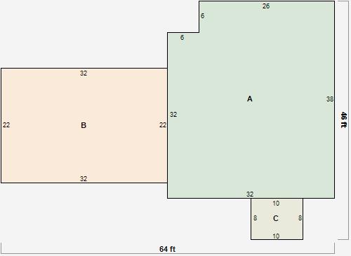
Parcel Sketches
Residential Card 1
A
MAIN
1180 square feet
B
FR GR FRAME GARAGE
704 square feet
C
MA STOOP/TERR MAS STOOP
80 square feet
Parcel Images
Please note:
this tab is for informational purposes only and may not show all delinquencies, see the Taxes tab for more accurate delinquent taxes due.