Elected Officials
Courts
Departments
Initiatives
Open Government
About
Login / Register
Home
/
Property & Tax Records
/
Property Records
/
Property & Tax Search
/
Parcel Profile
/
Print View
Search for Another Parcel
Parcel Profile
Historical Card
Sketches
Photos
Tax Map
Taxes
Print View
Print This Page
Address: 1611 BUFFALO RD
Parcel: 18051013020300
Parcel Profile
Address
1611 | BUFFALO | RD
Street Status
PAVED | SIDEWALK
School District
CITY OF ERIE SCHOOL
Acreage
0.4420
Classification
R
Land Use Code
SINGLE FAMILY
Legal Description
1611 BUFFALO RD 128.38 X 150 | 0.4420 AC
Square Feet
1690
Topo
LEVEL
Utility
ALL PUBLIC
Zoning
Please contact your municipal zoning officer
Deed Book
2022
Deed Page
023761
2026 Tax Values
Land Value / Taxable
6,800 / 6,800.00
Building Value / Taxable
13,200 / 13,200.00
Total Value / Taxable
20,000 / 20,000.00
Clean & Green
Inactive
Homestead Status
Inactive
Farmstead Status
Inactive
Lerta Amount
0.00
Lerta Expiration Year
2013
Residential Data
Card 1
Style
OLD STYLE
Basement
FULL
Year Built
1907
Exterior Wall
COMPOSITION
Total Living Area
1690
Full Baths
1
Half Baths
0
Fuel Type
GAS
Heating
CENTRAL
Heating System
FORCED AIR
Stories
2.0
Total Bedrooms
4
Total Family Rooms
0
Total Rooms
8
Fireplaces
0
Other Buildings & Yards
Description
Built
Width
Length
Area
FRAME OR CB DETACHED GARAGE
1907
20
40
800
FOUR SIDE WD POLE BLDG
2023
0
0
1200
Sales History
Sale Date
Type
Price
Book / Page
Other Info
11/3/2022
LAND & BUILDING
0
2022 / 023761
SPECIAL WARRANTY DEED
9/21/2018
LAND & BUILDING
19500
2018 / 019543
DEED
2/16/2018
LAND & BUILDING
2616
2018 / 003135
SHERIFF'S DED
4/3/2006
LAND & BUILDING
56000
1316 / 1827
WARRANTY/SURVIVORSHIP DEED
9/30/2005
LAND & BUILDING
12500
1274 / 1026
WARRANTY/SURVIVORSHIP DEED
2/16/1999
0
0618 / 0391
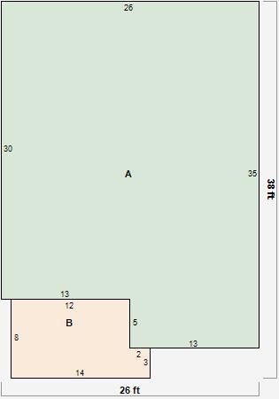
Parcel Sketches
Residential Card 1
A
MAIN
845 square feet
B
OFP OPEN FRAME PORCH
102 square feet
Parcel Images