Elected Officials
Courts
Departments
Initiatives
Open Government
About
Login / Register
Home
/
Property & Tax Records
/
Property Records
/
Property & Tax Search
/
Parcel Profile
/
Print View
Search for Another Parcel
Parcel Profile
Historical Card
Sketches
Photos
Tax Map
Taxes
Print View
Print This Page
Address: 2408 PEAR ST
Parcel: 18051015020400
Parcel Profile
Address
2408 | PEAR | ST
Street Status
PAVED
School District
CITY OF ERIE SCHOOL
Acreage
0.5689
Classification
R
Land Use Code
MULTIPLE DWELLINGS
Legal Description
2408 PEAR ST 92.24 X 233.14 IRREG | 0.5689 AC
Square Feet
3972
Topo
LEVEL
Utility
ALL PUBLIC
Zoning
Please contact your municipal zoning officer
Deed Book
2021
Deed Page
008675
2026 Tax Values
Land Value / Taxable
15,000 / 15,000.00
Building Value / Taxable
30,000 / 30,000.00
Total Value / Taxable
45,000 / 45,000.00
Clean & Green
Inactive
Homestead Status
Inactive
Farmstead Status
Inactive
Lerta Amount
0
Lerta Expiration Year
0
Residential Data
Card 1
Style
OLD STYLE
Basement
FULL
Year Built
1929
Exterior Wall
ALUMINUM/VINYL
Total Living Area
1840
Full Baths
2
Half Baths
0
Fuel Type
GAS
Heating
CENTRAL
Heating System
FORCED AIR
Stories
2.0
Total Bedrooms
4
Total Family Rooms
0
Total Rooms
8
Fireplaces
0
Card 2
Style
OLD STYLE
Basement
NONE
Year Built
1933
Exterior Wall
ALUMINUM/VINYL
Total Living Area
2132
Full Baths
1
Half Baths
0
Fuel Type
GAS
Heating
CENTRAL
Heating System
FORCED AIR
Stories
2.0
Total Bedrooms
3
Total Family Rooms
0
Total Rooms
6
Fireplaces
0
Other Buildings & Yards
Description
Built
Width
Length
Area
WOOD DECK
1970
12
12
144
Sales History
Sale Date
Type
Price
Book / Page
Other Info
4/12/2021
LAND & BUILDING
68000
2021 / 008675
SPECIAL WARRANTY DEED
8/14/2017
LAND & BUILDING
0
2017 / 017564
DEED
4/3/2006
LAND & BUILDING
0
1316 / 2270
SPECIAL WARRANTY DEED
10/27/2005
LAND & BUILDING
32000
1282 / 0351
SPECIAL WARRANTY DEED
10/7/2005
LAND & BUILDING
13382
1276 / 1783
SHERIFF'S DED
6/2/1989
0
0088 / 0970
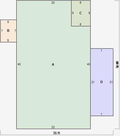
Parcel Sketches
Residential Card 1
A
MAIN
920 square feet
B
EFP ENCL FRAME PORCH
35 square feet
C
UNFIN BSMT BASEMENT UNFINISHED EFP ENCL FRAME PORCH
48 square feet
D
UNFIN BSMT BASEMENT UNFINISHED EFP ENCL FRAME PORCH EFP ENCL FRAME PORCH
147 square feet
Residential Card 2
A
MAIN
946 square feet
B
EFP ENCL FRAME PORCH
98 square feet
C
WDDCK WOOD DECKS
260 square feet
D
EFP ENCL FRAME PORCH
80 square feet
E
FR GR FRAME GARAGE 1S FR ONE STORY FRAME
240 square feet
Parcel Images
Please note:
this tab is for informational purposes only and may not show all delinquencies, see the Taxes tab for more accurate delinquent taxes due.