Elected Officials
Courts
Departments
Initiatives
Open Government
About
Login / Register
Home
/
Property & Tax Records
/
Property Records
/
Property & Tax Search
/
Parcel Profile
/
Print View
Search for Another Parcel
Parcel Profile
Historical Card
Sketches
Photos
Tax Map
Taxes
Print View
Print This Page
Address: 2120 DOWNING AVE
Parcel: 18051018010100
Parcel Profile
Address
2120 | DOWNING | AVE
Street Status
PAVED | SIDEWALK
School District
CITY OF ERIE SCHOOL
Acreage
0.1489
Classification
R
Land Use Code
SINGLE FAMILY
Legal Description
2120 DOWNING AVE 46 X 141
Square Feet
792
Topo
LEVEL
Utility
ALL PUBLIC
Zoning
Please contact your municipal zoning officer
Deed Book
1229
Deed Page
1033
2025 Tax Values
Land Value / Taxable
17,900 / 17,900.00
Building Value / Taxable
44,370 / 44,370.00
Total Value / Taxable
62,270 / 62,270.00
Clean & Green
Inactive
Homestead Status
Active
Farmstead Status
Inactive
Lerta Amount
0.00
Lerta Expiration Year
2013
Residential Data
Card 1
Style
CAPE
Basement
FULL
Year Built
1938
Exterior Wall
ALUMINUM/VINYL
Total Living Area
792
Full Baths
1
Half Baths
0
Fuel Type
GAS
Heating
CENTRAL
Heating System
FORCED AIR
Stories
1.0
Total Bedrooms
2
Total Family Rooms
0
Total Rooms
5
Fireplaces
0
Other Buildings & Yards
Description
Built
Width
Length
Area
FRAME OR CB DETACHED GARAGE
1955
22
26
572
Sales History
Sale Date
Type
Price
Book / Page
Other Info
4/28/2005
LAND & BUILDING
58900
1229 / 1033
SPECIAL WARRANTY DEED
3/8/2002
LAND & BUILDING
30000
860 / 309
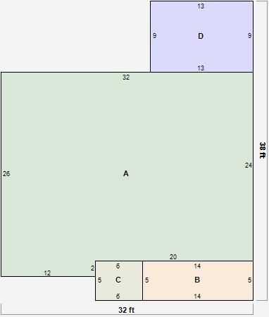
Parcel Sketches
Residential Card 1
A
MAIN
792 square feet
B
MA_PT CONC/MAS PATIO
70 square feet
C
EFP ENCL FRAME PORCH
30 square feet
D
WDDCK WOOD DECKS
117 square feet
Parcel Images