Elected Officials
Courts
Departments
Initiatives
Open Government
About
Login / Register
Home
/
Property & Tax Records
/
Property Records
/
Property & Tax Search
/
Parcel Profile
/
Print View
Search for Another Parcel
Parcel Profile
Historical Card
Sketches
Photos
Tax Map
Taxes
Print View
Print This Page
Address: 2121 PEAR ST
Parcel: 18051018011700
Parcel Profile
Address
2121 | PEAR | ST
Street Status
PAVED | SIDEWALK
School District
CITY OF ERIE SCHOOL
Acreage
0.1489
Classification
R
Land Use Code
SINGLE FAMILY
Legal Description
2121 PEAR ST 46 X 141
Square Feet
1084
Topo
LEVEL
Utility
ALL PUBLIC
Zoning
Please contact your municipal zoning officer
Deed Book
2016
Deed Page
012214
2026 Tax Values
Land Value / Taxable
17,900 / 17,900.00
Building Value / Taxable
30,050 / 30,050.00
Total Value / Taxable
47,950 / 47,950.00
Clean & Green
Inactive
Homestead Status
Active
Farmstead Status
Inactive
Lerta Amount
0
Lerta Expiration Year
0
Residential Data
Card 1
Style
OLD STYLE
Basement
PART
Year Built
1916
Exterior Wall
COMPOSITION
Total Living Area
1084
Full Baths
1
Half Baths
0
Fuel Type
GAS
Heating
CENTRAL
Heating System
FORCED AIR
Stories
2.0
Total Bedrooms
2
Total Family Rooms
0
Total Rooms
5
Fireplaces
0
Other Buildings & Yards
No OBY Data Found
Sales History
Sale Date
Type
Price
Book / Page
Other Info
6/15/2016
LAND & BUILDING
0
2016 / 012214
QUIT CLAIM DEED
12/22/1999
LAND & BUILDING
10000
680 / 422
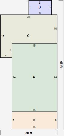
Parcel Sketches
Residential Card 1
A
MAIN
384 square feet
B
1S FR ONE STORY FRAME
96 square feet
C
UNFIN BSMT BASEMENT UNFINISHED 1S FR ONE STORY FRAME
220 square feet
D
EFP ENCL FRAME PORCH
40 square feet
Parcel Images
Please note:
this tab is for informational purposes only and may not show all delinquencies, see the Taxes tab for more accurate delinquent taxes due.