Elected Officials
Courts
Departments
Initiatives
Open Government
About
Login / Register
Home
/
Property & Tax Records
/
Property Records
/
Property & Tax Search
/
Parcel Profile
/
Print View
Search for Another Parcel
Parcel Profile
Historical Card
Sketches
Photos
Tax Map
Taxes
Print View
Print This Page
Address: 1849 BUFFALO RD
Parcel: 18051023010300
Parcel Profile
Address
1849 | BUFFALO | RD
Street Status
PAVED | SIDEWALK
School District
CITY OF ERIE SCHOOL
Acreage
0.4339
Classification
R
Land Use Code
SINGLE FAMILY
Legal Description
1849 BUFFALO RD 126 X 150
Square Feet
2176
Topo
LEVEL
Utility
ALL PUBLIC
Zoning
Please contact your municipal zoning officer
Deed Book
2022
Deed Page
011662
2025 Tax Values
Land Value / Taxable
22,300 / 22,300.00
Building Value / Taxable
23,000 / 23,000.00
Total Value / Taxable
45,300 / 45,300.00
Clean & Green
Inactive
Homestead Status
Inactive
Farmstead Status
Inactive
Lerta Amount
0
Lerta Expiration Year
0
Residential Data
Card 1
Style
OLD STYLE
Basement
FULL
Year Built
1915
Exterior Wall
FRAME
Total Living Area
2176
Full Baths
2
Half Baths
0
Fuel Type
GAS
Heating
CENTRAL
Heating System
FORCED AIR
Stories
2.0
Total Bedrooms
4
Total Family Rooms
0
Total Rooms
7
Fireplaces
0
Other Buildings & Yards
Description
Built
Width
Length
Area
FRAME OR CB DETACHED GARAGE
1915
18
18
324
Sales History
Sale Date
Type
Price
Book / Page
Other Info
6/1/2022
LAND & BUILDING
60000
2022 / 011662
SPECIAL WARRANTY DEED
8/3/2011
LAND & BUILDING
24000
2011 / 018015
DEED
7/31/1998
0
0577 / 2329
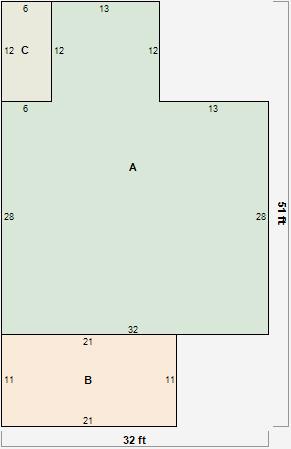
Parcel Sketches
Residential Card 1
A
MAIN
1052 square feet
B
EFP ENCL FRAME PORCH
231 square feet
C
UNFIN BSMT BASEMENT UNFINISHED 1S FR ONE STORY FRAME
72 square feet
Parcel Images