Elected Officials
Courts
Departments
Initiatives
Open Government
About
Login / Register
Home
/
Property & Tax Records
/
Property Records
/
Property & Tax Search
/
Parcel Profile
/
Print View
Search for Another Parcel
Parcel Profile
Historical Card
Sketches
Photos
Tax Map
Taxes
Print View
Print This Page
Address: 2048 CAMERON RD
Parcel: 18051023012800
Parcel Profile
Address
2048 | CAMERON | RD
Street Status
PAVED
School District
CITY OF ERIE SCHOOL
Acreage
0.0588
Classification
R
Land Use Code
SINGLE FAMILY
Legal Description
2048 CAMERON RD 54.5 X 47
Square Feet
720
Topo
LEVEL
Utility
ALL PUBLIC
Zoning
Please contact your municipal zoning officer
Deed Book
2015
Deed Page
018970
2026 Tax Values
Land Value / Taxable
6,500 / 6,500.00
Building Value / Taxable
15,050 / 15,050.00
Total Value / Taxable
21,550 / 21,550.00
Clean & Green
Inactive
Homestead Status
Inactive
Farmstead Status
Inactive
Lerta Amount
0
Lerta Expiration Year
0
Residential Data
Card 1
Style
BUNGALOW
Basement
FULL
Year Built
1915
Exterior Wall
ALUMINUM/VINYL
Total Living Area
720
Full Baths
1
Half Baths
0
Fuel Type
GAS
Heating
CENTRAL
Heating System
FORCED AIR
Stories
1.0
Total Bedrooms
3
Total Family Rooms
0
Total Rooms
5
Fireplaces
0
Other Buildings & Yards
Description
Built
Width
Length
Area
FRAME OR CB DETACHED GARAGE
1915
10
18
180
Sales History
Sale Date
Type
Price
Book / Page
Other Info
8/31/2015
LAND & BUILDING
0
2015 / 018970
QUIT CLAIM DEED
6/20/2013
LAND & BUILDING
0
2013 / 015723
SPECIAL WARRANTY DEED
4/26/2012
LAND & BUILDING
13500
2012 / 010398
WARRANTY/SURVIVORSHIP DEED
5/3/2004
LAND & BUILDING
0
1131 / 0399
WARRANTY/SURVIVORSHIP DEED
8/8/2000
LAND & BUILDING
29000
719 / 1220
8/8/2000
0
0719 / 0122
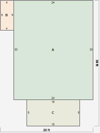
Parcel Sketches
Residential Card 1
A
MAIN
720 square feet
B
OFP OPEN FRAME PORCH
36 square feet
C
EFP ENCL FRAME PORCH
128 square feet
Parcel Images
Please note:
this tab is for informational purposes only and may not show all delinquencies, see the Taxes tab for more accurate delinquent taxes due.