Elected Officials
Courts
Departments
Initiatives
Open Government
About
Login / Register
Home
/
Property & Tax Records
/
Property Records
/
Property & Tax Search
/
Parcel Profile
/
Print View
Search for Another Parcel
Parcel Profile
Historical Card
Sketches
Photos
Tax Map
Taxes
Print View
Print This Page
Address: 2110 BIRD DR
Parcel: 18051041010400
Parcel Profile
Address
2110 | BIRD | DR
Street Status
PAVED | SIDEWALK
School District
CITY OF ERIE SCHOOL
Acreage
0.1239
Classification
R
Land Use Code
SINGLE FAMILY
Legal Description
2110 BIRD DR 41.5 X 130
Square Feet
1828
Topo
LEVEL
Utility
ALL PUBLIC
Zoning
Please contact your municipal zoning officer
Deed Book
2024
Deed Page
006411
2026 Tax Values
Land Value / Taxable
17,500 / 17,500.00
Building Value / Taxable
68,000 / 68,000.00
Total Value / Taxable
85,500 / 85,500.00
Clean & Green
Inactive
Homestead Status
Inactive
Farmstead Status
Inactive
Lerta Amount
0
Lerta Expiration Year
0
Residential Data
Card 1
Style
OLD STYLE
Basement
FULL
Year Built
1908
Exterior Wall
BRICK
Total Living Area
1828
Full Baths
2
Half Baths
0
Fuel Type
GAS
Heating
CENTRAL
Heating System
FORCED AIR
Stories
1.5
Total Bedrooms
4
Total Family Rooms
0
Total Rooms
8
Fireplaces
0
Other Buildings & Yards
Description
Built
Width
Length
Area
FRAME OR CB DETACHED GARAGE
1948
20
21
420
Sales History
Sale Date
Type
Price
Book / Page
Other Info
4/30/2024
LAND & BUILDING
121000
2024 / 006411
SPECIAL WARRANTY DEED
2/17/2004
LAND & BUILDING
61000
1108 / 0604
DEED
9/22/1986
0
1649 / 0449
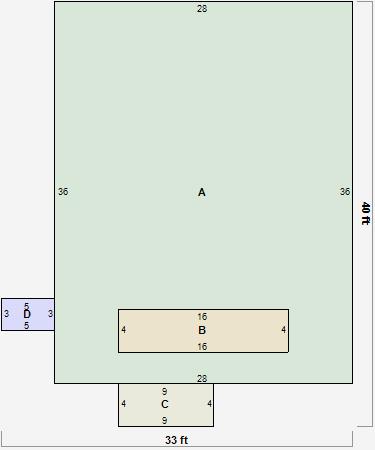
Parcel Sketches
Residential Card 1
A
MAIN
1008 square feet
B
1S FR ONE STORY FRAME
64 square feet
C
OFP OPEN FRAME PORCH
36 square feet
D
CANPY CANOPY
15 square feet
Parcel Images
Please note:
this tab is for informational purposes only and may not show all delinquencies, see the Taxes tab for more accurate delinquent taxes due.