Elected Officials
Courts
Departments
Initiatives
Open Government
About
Login / Register
Home
/
Property & Tax Records
/
Property Records
/
Property & Tax Search
/
Parcel Profile
/
Print View
Search for Another Parcel
Parcel Profile
Historical Card
Sketches
Photos
Tax Map
Taxes
Print View
Print This Page
Address: 2206 BIRD DR
Parcel: 18051042020600
Parcel Profile
Address
2206 | BIRD | DR
Street Status
PAVED | SIDEWALK
School District
CITY OF ERIE SCHOOL
Acreage
0.0880
Classification
R
Land Use Code
SINGLE FAMILY
Legal Description
2206 BIRD DR 40 X 100 IRR | LOT 36 | REF. MB 2 PG 398
Square Feet
1390
Topo
LEVEL
Utility
ALL PUBLIC
Zoning
Please contact your municipal zoning officer
Deed Book
2024
Deed Page
015874
2026 Tax Values
Land Value / Taxable
16,900 / 16,900.00
Building Value / Taxable
45,240 / 45,240.00
Total Value / Taxable
62,140 / 62,140.00
Clean & Green
Inactive
Homestead Status
Inactive
Farmstead Status
Inactive
Lerta Amount
0
Lerta Expiration Year
0
Residential Data
Card 1
Style
OLD STYLE
Basement
PART
Year Built
1931
Exterior Wall
ALUMINUM/VINYL
Total Living Area
1390
Full Baths
2
Half Baths
0
Fuel Type
GAS
Heating
CENTRAL
Heating System
FORCED AIR
Stories
1.0
Total Bedrooms
2
Total Family Rooms
0
Total Rooms
7
Fireplaces
0
Other Buildings & Yards
No OBY Data Found
Sales History
Sale Date
Type
Price
Book / Page
Other Info
10/1/2024
LAND & BUILDING
92500
2024 / 015874
SPECIAL WARRANTY DEED
3/28/2002
LAND & BUILDING
0
0865 / 2004
AFFIDAVIT
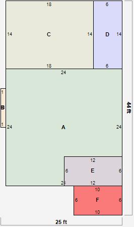
Parcel Sketches
Residential Card 1
A
MAIN
576 square feet
B
FRBAY FRAME BAY
8 square feet
C
UNFIN BSMT BASEMENT UNFINISHED 1S FR ONE STORY FRAME 1S FR ONE STORY FRAME
252 square feet
D
EFP ENCL FRAME PORCH
84 square feet
E
UNFIN BSMT BASEMENT UNFINISHED 1S FR ONE STORY FRAME
72 square feet
F
OFP OPEN FRAME PORCH
60 square feet
Parcel Images
Please note:
this tab is for informational purposes only and may not show all delinquencies, see the Taxes tab for more accurate delinquent taxes due.