Elected Officials
Courts
Departments
Initiatives
Open Government
About
Login / Register
Home
/
Property & Tax Records
/
Property Records
/
Property & Tax Search
/
Parcel Profile
/
Print View
Search for Another Parcel
Parcel Profile
Historical Card
Sketches
Photos
Tax Map
Taxes
Print View
Print This Page
Address: 2308 EASTLAWN PKWY
Parcel: 18051042041000
Parcel Profile
Address
2308 | EASTLAWN | PKWY
Street Status
PAVED | SIDEWALK
School District
CITY OF ERIE SCHOOL
Acreage
0.1240
Classification
R
Land Use Code
SINGLE FAMILY
Legal Description
2308 EASTLAWN PKWY 40 X IRR
Square Feet
894
Topo
LEVEL
Utility
ALL PUBLIC
Zoning
Please contact your municipal zoning officer
Deed Book
2023
Deed Page
018757
2026 Tax Values
Land Value / Taxable
17,500 / 17,500.00
Building Value / Taxable
46,080 / 46,080.00
Total Value / Taxable
63,580 / 63,580.00
Clean & Green
Inactive
Homestead Status
Active
Farmstead Status
Inactive
Lerta Amount
0
Lerta Expiration Year
0
Residential Data
Card 1
Style
CONVENTIONAL
Basement
PART
Year Built
1938
Exterior Wall
ALUMINUM/VINYL
Total Living Area
894
Full Baths
1
Half Baths
0
Fuel Type
GAS
Heating
CENTRAL
Heating System
HOT WATER
Stories
1.5
Total Bedrooms
2
Total Family Rooms
0
Total Rooms
5
Fireplaces
0
Other Buildings & Yards
Description
Built
Width
Length
Area
FRAME OR CB DETACHED GARAGE
1938
10
18
180
Sales History
Sale Date
Type
Price
Book / Page
Other Info
10/27/2023
LAND & BUILDING
113000
2023 / 018757
SPECIAL WARRANTY DEED
4/25/2012
LAND & BUILDING
75500
2012 / 010200
DEED
7/9/2001
0
0790 / 2069
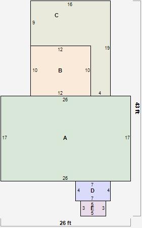
Parcel Sketches
Residential Card 1
A
MAIN
442 square feet
B
1S FR ONE STORY FRAME
120 square feet
C
OFP OPEN FRAME PORCH
184 square feet
D
EMP ENCL MASONRY PORCH
28 square feet
E
MA STOOP/TERR MAS STOOP
15 square feet
Parcel Images
Please note:
this tab is for informational purposes only and may not show all delinquencies, see the Taxes tab for more accurate delinquent taxes due.