Elected Officials
Courts
Departments
Initiatives
Open Government
About
Login / Register
Home
/
Property & Tax Records
/
Property Records
/
Property & Tax Search
/
Parcel Profile
/
Print View
Search for Another Parcel
Parcel Profile
Historical Card
Sketches
Photos
Tax Map
Taxes
Print View
Print This Page
Address: 3313 BURTON AVE
Parcel: 18052013022000
Parcel Profile
Address
3313 | BURTON | AVE
Street Status
PAVED | SIDEWALK
School District
CITY OF ERIE SCHOOL
Acreage
0.2280
Classification
R
Land Use Code
SINGLE FAMILY
Legal Description
3313 BURTON AVE 74 X 139 IRREG | 0.228 AC
Square Feet
1144
Topo
LEVEL
Utility
ALL PUBLIC
Zoning
Please contact your municipal zoning officer
Deed Book
2024
Deed Page
019099
2026 Tax Values
Land Value / Taxable
19,100 / 19,100.00
Building Value / Taxable
2,330 / 2,330.00
Total Value / Taxable
21,430 / 21,430.00
Clean & Green
Inactive
Homestead Status
Inactive
Farmstead Status
Inactive
Lerta Amount
0
Lerta Expiration Year
0
Residential Data
Card 1
Style
OLD STYLE
Basement
FULL
Year Built
1912
Exterior Wall
COMPOSITION
Total Living Area
1144
Full Baths
1
Half Baths
0
Fuel Type
GAS
Heating
CENTRAL
Heating System
FORCED AIR
Stories
2.0
Total Bedrooms
3
Total Family Rooms
0
Total Rooms
6
Fireplaces
0
Other Buildings & Yards
No OBY Data Found
Sales History
Sale Date
Type
Price
Book / Page
Other Info
11/18/2024
LAND & BUILDING
56000
2024 / 019099
CONDEMNATION
2/27/2024
0
2024 / 002931
1/6/2023
LAND & BUILDING
0
2023 / 000275
TAX DEED
12/29/2022
LAND & BUILDING
0
2022 / 026946
DEED
4/1/2002
LAND & BUILDING
0
0866 / 0729
AFFIDAVIT
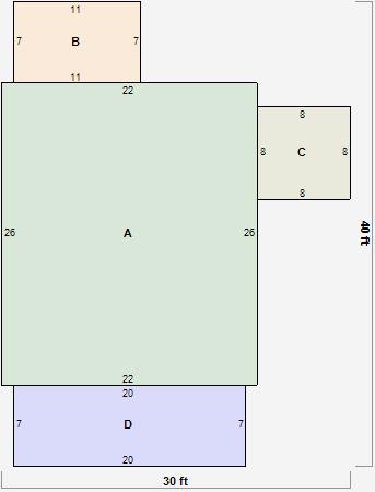
Parcel Sketches
Residential Card 1
A
MAIN
572 square feet
B
EFP ENCL FRAME PORCH
77 square feet
C
WDDCK WOOD DECKS
64 square feet
D
UNFIN BSMT BASEMENT UNFINISHED EFP ENCL FRAME PORCH
140 square feet
Parcel Images
Please note:
this tab is for informational purposes only and may not show all delinquencies, see the Taxes tab for more accurate delinquent taxes due.