Address: 1205 E 38 ST   Parcel: 18052015021500
Parcel Profile
Address1205 | E | 38 | ST
Street StatusPAVED | SIDEWALK
School DistrictCITY OF ERIE SCHOOL
Acreage0.1984
ClassificationC
Land Use CodeRESTAURANTS, STORES (RETAIL)
Legal Description1205 E 38 ST BLVD 77.5X111.51
Square Feet2974
TopoLEVEL
UtilityALL PUBLIC
ZoningPlease contact your municipal zoning officer
Deed Book1554
Deed Page0115
2026 Tax Values
Land Value / Taxable25,900 / 25,900.00
Building Value / Taxable45,200 / 45,200.00
Total Value / Taxable71,100 / 71,100.00
Clean & GreenInactive
Homestead StatusActive
Farmstead StatusInactive
Lerta Amount0
Lerta Expiration Year0
Commercial Data
Card 1MIXED RESIDENTIAL/COMMERCIAL
 Business Living Area - 1980
 Year Built - 1955
 Improvement Name - NOTARY OFFICE
 Value - 31410
Card 2RETAIL SINGLE OCCUP
 Business Living Area - 994
 Year Built - 1955
 Improvement Name - DART CITY
 Value - 13740
Other Buildings & Yards
No OBY Data Found
Sales History
Sale DateTypePriceBook / PageOther Info
9/28/1984 01554 / 0115 



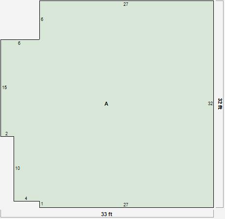
Parcel Sketches

Commercial Card 1

Commercial Card 1
AMAIN720 square feet
BMAIN720 square feet
CMAIN540 square feet

Commercial Card 2

Commercial Card 2
AMAIN994 square feet

Parcel Images

parcel photo
Please note: this tab is for informational purposes only and may not show all delinquencies, see the Taxes tab for more accurate delinquent taxes due.