Elected Officials
Courts
Departments
Initiatives
Open Government
About
Login / Register
Home
/
Property & Tax Records
/
Property Records
/
Property & Tax Search
/
Parcel Profile
/
Print View
Search for Another Parcel
Parcel Profile
Historical Card
Sketches
Photos
Tax Map
Taxes
Print View
Print This Page
Address: 1331 E 35 ST
Parcel: 18052023031300
Parcel Profile
Address
1331 | E | 35 | ST
Street Status
PAVED
School District
CITY OF ERIE SCHOOL
Acreage
0.3308
Classification
R
Land Use Code
SINGLE FAMILY
Legal Description
1331 E 35 ST 111 X 131.08
Square Feet
1165
Topo
LEVEL
Utility
ALL PUBLIC
Zoning
Please contact your municipal zoning officer
Deed Book
1185
Deed Page
0927
2026 Tax Values
Land Value / Taxable
21,400 / 21,400.00
Building Value / Taxable
46,400 / 46,400.00
Total Value / Taxable
67,800 / 67,800.00
Clean & Green
Inactive
Homestead Status
Active
Farmstead Status
Inactive
Lerta Amount
0
Lerta Expiration Year
0
Residential Data
Card 1
Style
CAPE
Basement
FULL
Year Built
1901
Exterior Wall
ALUMINUM/VINYL
Total Living Area
1165
Full Baths
1
Half Baths
0
Fuel Type
GAS
Heating
CENTRAL
Heating System
FORCED AIR
Stories
1.0
Total Bedrooms
2
Total Family Rooms
0
Total Rooms
6
Fireplaces
0
Other Buildings & Yards
No OBY Data Found
Sales History
Sale Date
Type
Price
Book / Page
Other Info
10/29/2004
LAND & BUILDING
0
1185 / 0927
QUIT CLAIM DEED
4/2/1996
0
0431 / 1750
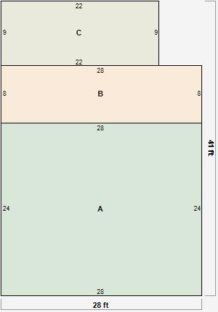
Parcel Sketches
Residential Card 1
A
MAIN
672 square feet
B
1S FR ONE STORY FRAME
224 square feet
C
MA_PT CONC/MAS PATIO
198 square feet
Parcel Images