Elected Officials
Courts
Departments
Initiatives
Open Government
About
Login / Register
Home
/
Property & Tax Records
/
Property Records
/
Property & Tax Search
/
Parcel Profile
/
Print View
Search for Another Parcel
Parcel Profile
Historical Card
Sketches
Photos
Tax Map
Taxes
Print View
Print This Page
Address: 4111 MARION ST
Parcel: 18052027061800
Parcel Profile
Address
4111 | MARION | ST
Street Status
PAVED
School District
CITY OF ERIE SCHOOL
Acreage
0.2417
Classification
R
Land Use Code
SINGLE FAMILY
Legal Description
4111 MARION ST 79.605X269.03
Square Feet
988
Topo
LEVEL
Utility
ALL PUBLIC
Zoning
Please contact your municipal zoning officer
Deed Book
2021
Deed Page
000891
2025 Tax Values
Land Value / Taxable
23,500 / 23,500.00
Building Value / Taxable
59,740 / 59,740.00
Total Value / Taxable
83,240 / 83,240.00
Clean & Green
Inactive
Homestead Status
Active
Farmstead Status
Inactive
Lerta Amount
0
Lerta Expiration Year
0
Residential Data
Card 1
Style
RANCH
Basement
FULL
Year Built
1963
Exterior Wall
ALUMINUM/VINYL
Total Living Area
988
Full Baths
1
Half Baths
0
Fuel Type
GAS
Heating
CENTRAL
Heating System
FORCED AIR
Stories
1.0
Total Bedrooms
3
Total Family Rooms
0
Total Rooms
5
Fireplaces
0
Other Buildings & Yards
No OBY Data Found
Sales History
Sale Date
Type
Price
Book / Page
Other Info
1/13/2021
LAND & BUILDING
92500
2021 / 000891
SPECIAL WARRANTY DEED
4/6/1995
0
0378 / 1563
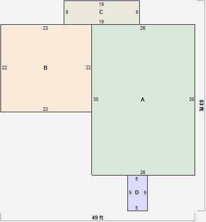
Parcel Sketches
Residential Card 1
A
MAIN
988 square feet
B
FR GR FRAME GARAGE
506 square feet
C
EFP ENCL FRAME PORCH
114 square feet
D
MA STOOP/TERR MAS STOOP
45 square feet
Parcel Images