Elected Officials
Courts
Departments
Initiatives
Open Government
About
Login / Register
Home
/
Property & Tax Records
/
Property Records
/
Property & Tax Search
/
Parcel Profile
/
Print View
Search for Another Parcel
Parcel Profile
Historical Card
Sketches
Photos
Tax Map
Taxes
Print View
Print This Page
Address: 4151 MARION ST
Parcel: 18052027062700
Parcel Profile
Address
4151 | MARION | ST
Street Status
SEMI IMPROVED
School District
CITY OF ERIE SCHOOL
Acreage
0.3030
Classification
R
Land Use Code
SINGLE FAMILY
Legal Description
4151 MARION ST 104.23 X 120
Square Feet
873
Topo
LEVEL
Utility
ALL PUBLIC
Zoning
Please contact your municipal zoning officer
Deed Book
2011
Deed Page
003931
2025 Tax Values
Land Value / Taxable
24,400 / 24,400.00
Building Value / Taxable
54,680 / 54,680.00
Total Value / Taxable
79,080 / 79,080.00
Clean & Green
Inactive
Homestead Status
Active
Farmstead Status
Inactive
Lerta Amount
0
Lerta Expiration Year
0
Residential Data
Card 1
Style
BUNGALOW
Basement
FULL
Year Built
1932
Exterior Wall
ALUMINUM/VINYL
Total Living Area
873
Full Baths
1
Half Baths
0
Fuel Type
GAS
Heating
CENTRAL
Heating System
HOT WATER
Stories
1.0
Total Bedrooms
2
Total Family Rooms
0
Total Rooms
4
Fireplaces
0
Other Buildings & Yards
Description
Built
Width
Length
Area
FRAME UTILITY SHED
1932
18
18
324
Sales History
Sale Date
Type
Price
Book / Page
Other Info
2/15/2011
LAND & BUILDING
0
2011 / 003931
QUIT CLAIM DEED
7/5/2006
LAND & BUILDING
0
1342 / 0599
QUIT CLAIM DEED
3/15/2006
LAND & BUILDING
85000
1312 / 1854
WARRANTY/SURVIVORSHIP DEED
6/10/1994
0
0339 / 1162
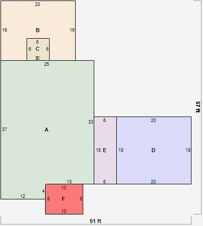
Parcel Sketches
Residential Card 1
A
MAIN
873 square feet
B
WDDCK WOOD DECKS
320 square feet
C
MA STOOP/TERR MAS STOOP
36 square feet
D
FR GR FRAME GARAGE
360 square feet
E
OFP OPEN FRAME PORCH
108 square feet
F
MA STOOP/TERR MAS STOOP
80 square feet
Parcel Images