Elected Officials
Courts
Departments
Initiatives
Open Government
About
Login / Register
Home
/
Property & Tax Records
/
Property Records
/
Property & Tax Search
/
Parcel Profile
/
Print View
Search for Another Parcel
Parcel Profile
Historical Card
Sketches
Photos
Tax Map
Taxes
Print View
Print This Page
Address: 501 HILLCREST AVE
Parcel: 18053004030300
Parcel Profile
Address
501 | HILLCREST | AVE
Street Status
PAVED
School District
CITY OF ERIE SCHOOL
Acreage
0.2100
Classification
R
Land Use Code
SINGLE FAMILY
Legal Description
501 HILLCREST AVE 90 X 100 | LOTS 52, 53 & 54
Square Feet
1604
Topo
ABOVE STREET
Utility
ALL PUBLIC
Zoning
Please contact your municipal zoning officer
Deed Book
2016
Deed Page
005213
2026 Tax Values
Land Value / Taxable
18,900 / 18,900.00
Building Value / Taxable
144,000 / 144,000.00
Total Value / Taxable
162,900 / 162,900.00
Clean & Green
Inactive
Homestead Status
Inactive
Farmstead Status
Inactive
Lerta Amount
0.00
Lerta Expiration Year
2014
Residential Data
Card 1
Style
RANCH
Basement
FULL
Year Built
2004
Exterior Wall
ALUMINUM/VINYL
Total Living Area
1604
Full Baths
2
Half Baths
0
Fuel Type
GAS
Heating
CENTRAL A/C
Heating System
FORCED AIR
Stories
1.0
Total Bedrooms
3
Total Family Rooms
0
Total Rooms
5
Fireplaces
0
Other Buildings & Yards
No OBY Data Found
Sales History
Sale Date
Type
Price
Book / Page
Other Info
3/16/2016
LAND & BUILDING
172000
2016 / 005213
DEED
1/18/2008
LAND & BUILDING
170000
1472 / 0007
WARRANTY/SURVIVORSHIP DEED
11/18/2004
LAND & BUILDING
150000
1190 / 1668
WARRANTY/SURVIVORSHIP DEED
11/18/2004
LAND & BUILDING
150000
1190 / 1668
DEED
9/27/2004
LAND & BUILDING
0
1176 / 1549
DEED
7/2/2004
LAND & BUILDING
0
1151 / 1954
DEED
8/1/1991
0
0171 / 0167
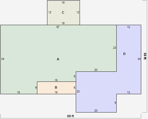
Parcel Sketches
Residential Card 1
A
MAIN
1604 square feet
B
OFP OPEN FRAME PORCH
114 square feet
C
WDDCK WOOD DECKS
192 square feet
D
FR GR FRAME GARAGE
808 square feet
Parcel Images