Elected Officials
Courts
Departments
Initiatives
Open Government
About
Login / Register
Home
/
Property & Tax Records
/
Property Records
/
Property & Tax Search
/
Parcel Profile
/
Print View
Search for Another Parcel
Parcel Profile
Historical Card
Sketches
Photos
Tax Map
Taxes
Print View
Print This Page
Address: 3825 WOOD ST
Parcel: 18053008011900
Parcel Profile
Address
3825 | WOOD | ST
Street Status
PAVED | SIDEWALK
School District
CITY OF ERIE SCHOOL
Acreage
0.1412
Classification
R
Land Use Code
SINGLE FAMILY
Legal Description
3825 WOOD ST 41X150.5
Square Feet
1144
Topo
LEVEL
Utility
ALL PUBLIC
Zoning
Please contact your municipal zoning officer
Deed Book
2010
Deed Page
013510
2026 Tax Values
Land Value / Taxable
17,800 / 17,800.00
Building Value / Taxable
61,040 / 61,040.00
Total Value / Taxable
78,840 / 78,840.00
Clean & Green
Inactive
Homestead Status
Inactive
Farmstead Status
Inactive
Lerta Amount
0
Lerta Expiration Year
0
Residential Data
Card 1
Style
OLD STYLE
Basement
FULL
Year Built
1926
Exterior Wall
ALUMINUM/VINYL
Total Living Area
1144
Full Baths
1
Half Baths
0
Fuel Type
GAS
Heating
CENTRAL
Heating System
FORCED AIR
Stories
2.0
Total Bedrooms
3
Total Family Rooms
0
Total Rooms
7
Fireplaces
0
Other Buildings & Yards
Description
Built
Width
Length
Area
FRAME OR CB DETACHED GARAGE
2001
20
20
400
Sales History
Sale Date
Type
Price
Book / Page
Other Info
6/10/2010
LAND & BUILDING
82500
2010 / 013510
DEED
8/6/1999
0
0654 / 1401
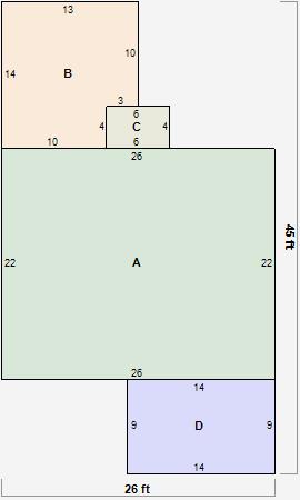
Parcel Sketches
Residential Card 1
A
MAIN
572 square feet
B
WDDCK WOOD DECKS
170 square feet
C
EFP ENCL FRAME PORCH
24 square feet
D
UNFIN BSMT BASEMENT UNFINISHED EFP ENCL FRAME PORCH
126 square feet
Parcel Images
Please note:
this tab is for informational purposes only and may not show all delinquencies, see the Taxes tab for more accurate delinquent taxes due.