Elected Officials
Courts
Departments
Initiatives
Open Government
About
Login / Register
Home
/
Property & Tax Records
/
Property Records
/
Property & Tax Search
/
Parcel Profile
/
Print View
Search for Another Parcel
Parcel Profile
Historical Card
Sketches
Photos
Tax Map
Taxes
Print View
Print This Page
Address: 622 W 39 ST
Parcel: 18053008012400
Parcel Profile
Address
622 | W | 39 | ST
Street Status
PAVED | SIDEWALK
School District
CITY OF ERIE SCHOOL
Acreage
0.3329
Classification
R
Land Use Code
SINGLE FAMILY
Legal Description
622 W 39 ST 100.5 X 145
Square Feet
2265
Topo
LEVEL
Utility
ALL PUBLIC
Zoning
Please contact your municipal zoning officer
Deed Book
1037
Deed Page
702
2026 Tax Values
Land Value / Taxable
20,700 / 20,700.00
Building Value / Taxable
93,590 / 93,590.00
Total Value / Taxable
114,290 / 114,290.00
Clean & Green
Inactive
Homestead Status
Active
Farmstead Status
Inactive
Lerta Amount
0
Lerta Expiration Year
0
Residential Data
Card 1
Style
OLD STYLE
Basement
FULL
Year Built
1923
Exterior Wall
BRICK
Total Living Area
2265
Full Baths
2
Half Baths
0
Fuel Type
GAS
Heating
CENTRAL
Heating System
FORCED AIR
Stories
1.5
Total Bedrooms
5
Total Family Rooms
1
Total Rooms
10
Fireplaces
1
Other Buildings & Yards
Description
Built
Width
Length
Area
PLASTIC LINER POOL
1990
15
15
225
Sales History
Sale Date
Type
Price
Book / Page
Other Info
7/17/2003
LAND & BUILDING
0
1037 / 702
QUIT CLAIM DEED
10/26/1984
0
1557 / 0451
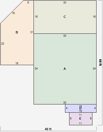
Parcel Sketches
Residential Card 1
A
MAIN
1020 square feet
B
WDDCK WOOD DECKS
436 square feet
C
FR GR FRAME GARAGE 1SMAS MASONRY
480 square feet
D
EMP ENCL MASONRY PORCH
60 square feet
E
OMP OPEN MASONRY PORCH
66 square feet
Parcel Images
Please note:
this tab is for informational purposes only and may not show all delinquencies, see the Taxes tab for more accurate delinquent taxes due.