Elected Officials
Courts
Departments
Initiatives
Open Government
About
Login / Register
Home
/
Property & Tax Records
/
Property Records
/
Property & Tax Search
/
Parcel Profile
/
Print View
Search for Another Parcel
Parcel Profile
Historical Card
Sketches
Photos
Tax Map
Taxes
Print View
Print This Page
Address: 3950 CHERRY ST
Parcel: 18053009020100
Parcel Profile
Address
3950 | CHERRY | ST
Street Status
PAVED | SIDEWALK
School District
CITY OF ERIE SCHOOL
Acreage
0.1722
Classification
R
Land Use Code
SINGLE FAMILY
Legal Description
3950 CHERRY ST 50 X 150.5
Square Feet
1888
Topo
LEVEL
Utility
ALL PUBLIC
Zoning
Please contact your municipal zoning officer
Deed Book
2012
Deed Page
033097
2026 Tax Values
Land Value / Taxable
18,300 / 18,300.00
Building Value / Taxable
88,800 / 88,800.00
Total Value / Taxable
107,100 / 107,100.00
Clean & Green
Inactive
Homestead Status
Active
Farmstead Status
Inactive
Lerta Amount
0
Lerta Expiration Year
0
Residential Data
Card 1
Style
OLD STYLE
Basement
FULL
Year Built
1929
Exterior Wall
MASONRY & FRAME
Total Living Area
1888
Full Baths
1
Half Baths
0
Fuel Type
GAS
Heating
CENTRAL A/C
Heating System
FORCED AIR
Stories
2.0
Total Bedrooms
3
Total Family Rooms
1
Total Rooms
7
Fireplaces
0
Other Buildings & Yards
Description
Built
Width
Length
Area
FRAME OR CB DETACHED GARAGE
1929
20
20
400
Sales History
Sale Date
Type
Price
Book / Page
Other Info
12/4/2012
LAND & BUILDING
135000
2012 / 033097
DEED
11/1/2004
LAND & BUILDING
127850
1186 / 0336
WARRANTY/SURVIVORSHIP DEED
2/7/2002
LAND & BUILDING
0
852 / 84
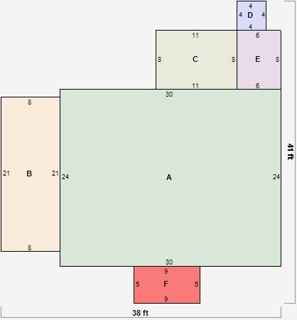
Parcel Sketches
Residential Card 1
A
MAIN
720 square feet
B
1SMAS MASONRY
168 square feet
C
UNFIN BSMT BASEMENT UNFINISHED 1SMAS MASONRY
88 square feet
D
MA STOOP/TERR MAS STOOP
16 square feet
E
UNFIN BSMT BASEMENT UNFINISHED 1SMAS MASONRY
48 square feet
F
OFP OPEN FRAME PORCH
45 square feet
Parcel Images
Please note:
this tab is for informational purposes only and may not show all delinquencies, see the Taxes tab for more accurate delinquent taxes due.