Elected Officials
Courts
Departments
Initiatives
Open Government
About
Login / Register
Home
/
Property & Tax Records
/
Property Records
/
Property & Tax Search
/
Parcel Profile
/
Print View
Search for Another Parcel
Parcel Profile
Historical Card
Sketches
Photos
Tax Map
Taxes
Print View
Print This Page
Address: 4815 HOMELAND BLVD
Parcel: 18053015020500
Parcel Profile
Address
4815 | HOMELAND | BLVD
Street Status
PAVED
School District
CITY OF ERIE SCHOOL
Acreage
0.1543
Classification
R
Land Use Code
SINGLE FAMILY
Legal Description
4815 HOMELAND BLVD 64X105.5
Square Feet
2618
Topo
ROLLING
Utility
ALL PUBLIC
Zoning
Please contact your municipal zoning officer
Deed Book
2024
Deed Page
004678
2026 Tax Values
Land Value / Taxable
48,300 / 48,300.00
Building Value / Taxable
147,930 / 147,930.00
Total Value / Taxable
196,230 / 196,230.00
Clean & Green
Inactive
Homestead Status
Active
Farmstead Status
Inactive
Lerta Amount
0
Lerta Expiration Year
0
Residential Data
Card 1
Style
TUDOR
Basement
FULL
Year Built
1930
Exterior Wall
BRICK
Total Living Area
2618
Full Baths
1
Half Baths
2
Fuel Type
GAS
Heating
CENTRAL
Heating System
HOT WATER
Stories
2.0
Total Bedrooms
4
Total Family Rooms
0
Total Rooms
8
Fireplaces
1
Other Buildings & Yards
Description
Built
Width
Length
Area
FRAME OR CB DETACHED GARAGE
1930
20
20
400
Sales History
Sale Date
Type
Price
Book / Page
Other Info
3/28/2024
LAND & BUILDING
0
2024 / 004678
SPECIAL WARRANTY DEED
1/31/1991
0
0149 / 1283
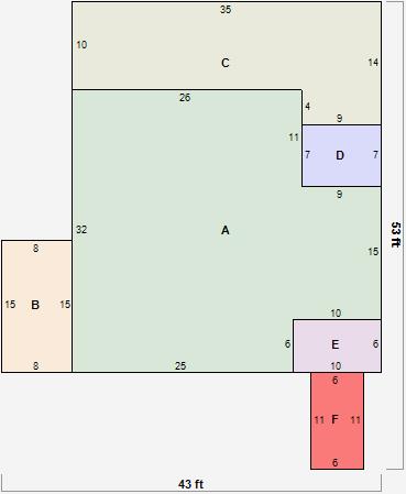
Parcel Sketches
Residential Card 1
A
MAIN
961 square feet
B
UNFIN BSMT BASEMENT UNFINISHED 1SMAS MASONRY
120 square feet
C
MA_PT CONC/MAS PATIO
386 square feet
D
OMP OPEN MASONRY PORCH
63 square feet
E
1SMAS MASONRY
60 square feet
F
MA STOOP/TERR MAS STOOP
66 square feet
Parcel Images
Please note:
this tab is for informational purposes only and may not show all delinquencies, see the Taxes tab for more accurate delinquent taxes due.