Elected Officials
Courts
Departments
Initiatives
Open Government
About
Login / Register
Home
/
Property & Tax Records
/
Property Records
/
Property & Tax Search
/
Parcel Profile
/
Print View
Search for Another Parcel
Parcel Profile
Historical Card
Sketches
Photos
Tax Map
Taxes
Print View
Print This Page
Address: 4514 HOMELAND BLVD
Parcel: 18053017020200
Parcel Profile
Address
4514 | HOMELAND | BLVD
Street Status
PAVED | SIDEWALK
School District
CITY OF ERIE SCHOOL
Acreage
0.1626
Classification
R
Land Use Code
SINGLE FAMILY
Legal Description
4514 HOMELAND BLVD 65X107.5
Square Feet
2092
Topo
LEVEL
Utility
ALL PUBLIC
Zoning
Please contact your municipal zoning officer
Deed Book
2021
Deed Page
029923
2026 Tax Values
Land Value / Taxable
49,000 / 49,000.00
Building Value / Taxable
93,590 / 93,590.00
Total Value / Taxable
142,590 / 142,590.00
Clean & Green
Inactive
Homestead Status
Active
Farmstead Status
Inactive
Lerta Amount
0
Lerta Expiration Year
0
Residential Data
Card 1
Style
OLD STYLE
Basement
PART
Year Built
1920
Exterior Wall
BRICK
Total Living Area
2092
Full Baths
2
Half Baths
0
Fuel Type
GAS
Heating
CENTRAL
Heating System
FORCED AIR
Stories
2.0
Total Bedrooms
4
Total Family Rooms
0
Total Rooms
7
Fireplaces
3
Other Buildings & Yards
Description
Built
Width
Length
Area
FRAME OR CB DETACHED GARAGE
1976
24
24
576
Sales History
Sale Date
Type
Price
Book / Page
Other Info
11/8/2021
LAND & BUILDING
160000
2021 / 029923
SPECIAL WARRANTY DEED
1/27/2021
LAND & BUILDING
134000
2021 / 001987
FIDUCIARY DEED
2/3/1995
0
0371 / 2336
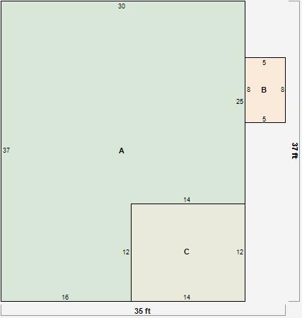
Parcel Sketches
Residential Card 1
A
MAIN
942 square feet
B
1S FR ONE STORY FRAME
40 square feet
C
EMP ENCL MASONRY PORCH 1SMAS MASONRY
168 square feet
Parcel Images
Please note:
this tab is for informational purposes only and may not show all delinquencies, see the Taxes tab for more accurate delinquent taxes due.