Elected Officials
Courts
Departments
Initiatives
Open Government
About
Login / Register
Home
/
Property & Tax Records
/
Property Records
/
Property & Tax Search
/
Parcel Profile
/
Print View
Search for Another Parcel
Parcel Profile
Historical Card
Sketches
Photos
Tax Map
Taxes
Print View
Print This Page
Address: 4424 HOMELAND BLVD
Parcel: 18053017020500
Parcel Profile
Address
4424 | HOMELAND | BLVD
Street Status
PAVED | SIDEWALK
School District
CITY OF ERIE SCHOOL
Acreage
0.1626
Classification
R
Land Use Code
SINGLE FAMILY
Legal Description
4424 HOMELAND BLVD 65X102.87
Square Feet
1646
Topo
LEVEL
Utility
ALL PUBLIC
Zoning
Please contact your municipal zoning officer
Deed Book
2018
Deed Page
011405
2026 Tax Values
Land Value / Taxable
49,000 / 49,000.00
Building Value / Taxable
99,700 / 99,700.00
Total Value / Taxable
148,700 / 148,700.00
Clean & Green
Inactive
Homestead Status
Active
Farmstead Status
Inactive
Lerta Amount
0
Lerta Expiration Year
0
Residential Data
Card 1
Style
CONVENTIONAL
Basement
FULL
Year Built
1923
Exterior Wall
FRAME
Total Living Area
1646
Full Baths
1
Half Baths
1
Fuel Type
GAS
Heating
CENTRAL
Heating System
FORCED AIR
Stories
2.0
Total Bedrooms
3
Total Family Rooms
1
Total Rooms
7
Fireplaces
1
Other Buildings & Yards
No OBY Data Found
Sales History
Sale Date
Type
Price
Book / Page
Other Info
6/12/2018
LAND & BUILDING
172500
2018 / 011405
DEED
5/30/2014
LAND & BUILDING
125000
2014 / 010575
SPECIAL WARRANTY DEED
10/17/2013
LAND & BUILDING
0
2013 / 027581
DEED
6/30/2000
LAND & BUILDING
150000
712 / 1443
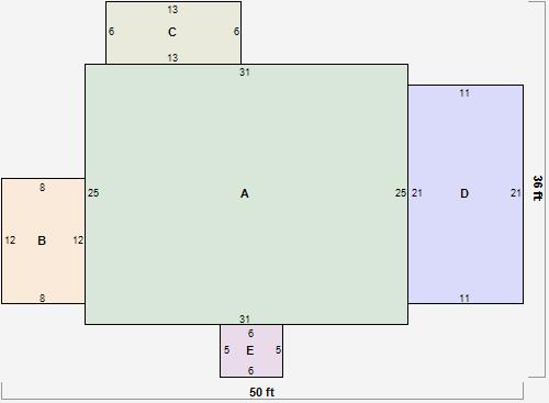
Parcel Sketches
Residential Card 1
A
MAIN
775 square feet
B
1S FR ONE STORY FRAME
96 square feet
C
EFP ENCL FRAME PORCH
78 square feet
D
FR GR FRAME GARAGE OFP OPEN FRAME PORCH
231 square feet
E
OFP OPEN FRAME PORCH
30 square feet
Parcel Images
Please note:
this tab is for informational purposes only and may not show all delinquencies, see the Taxes tab for more accurate delinquent taxes due.