Elected Officials
Courts
Departments
Initiatives
Open Government
About
Login / Register
Home
/
Property & Tax Records
/
Property Records
/
Property & Tax Search
/
Parcel Profile
/
Print View
Search for Another Parcel
Parcel Profile
Historical Card
Sketches
Photos
Tax Map
Taxes
Print View
Print This Page
Address: 343 MARSH ST
Parcel: 18053027020400
Parcel Profile
Address
343 | MARSH | ST
Street Status
PAVED | SIDEWALK
School District
CITY OF ERIE SCHOOL
Acreage
0.0744
Classification
R
Land Use Code
SINGLE FAMILY
Legal Description
343 MARSH ST 40X80
Square Feet
1174
Topo
LEVEL
Utility
ALL PUBLIC
Zoning
Please contact your municipal zoning officer
Deed Book
2020
Deed Page
019910
2026 Tax Values
Land Value / Taxable
15,400 / 15,400.00
Building Value / Taxable
57,560 / 57,560.00
Total Value / Taxable
72,960 / 72,960.00
Clean & Green
Inactive
Homestead Status
Active
Farmstead Status
Inactive
Lerta Amount
0
Lerta Expiration Year
0
Residential Data
Card 1
Style
CONVENTIONAL
Basement
FULL
Year Built
1928
Exterior Wall
ALUMINUM/VINYL
Total Living Area
1174
Full Baths
1
Half Baths
0
Fuel Type
GAS
Heating
CENTRAL
Heating System
FORCED AIR
Stories
2.0
Total Bedrooms
3
Total Family Rooms
0
Total Rooms
6
Fireplaces
0
Other Buildings & Yards
Description
Built
Width
Length
Area
FRAME OR CB DETACHED GARAGE
1928
12
20
240
Sales History
Sale Date
Type
Price
Book / Page
Other Info
9/28/2020
LAND & BUILDING
114900
2020 / 019910
SPECIAL WARRANTY DEED
9/20/2013
LAND & BUILDING
84900
2013 / 025265
DEED
8/15/1974
0
1126 / 0379
Parcel Sketches
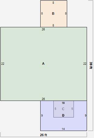
Residential Card 1
A
MAIN
572 square feet
B
EFP ENCL FRAME PORCH
64 square feet
C
OFP OPEN FRAME PORCH 1S FR ONE STORY FRAME
30 square feet
D
OFP OPEN FRAME PORCH
126 square feet
Parcel Images
Please note:
this tab is for informational purposes only and may not show all delinquencies, see the Taxes tab for more accurate delinquent taxes due.