Address: 3172 GLENWOOD PARK AVE   Parcel: 18053030010000
Parcel Profile
Address3172 | GLENWOOD PARK | AVE
Street StatusPAVED | SIDEWALK
School DistrictCITY OF ERIE SCHOOL
Acreage0.0599
ClassificationR
Land Use CodeTWO FAMILY
Legal Description3172 GLENWOOD PARK AVE 45X58
Square Feet1908
TopoLEVEL
UtilityALL PUBLIC
ZoningPlease contact your municipal zoning officer
Deed Book2022
Deed Page011073
2026 Tax Values
Land Value / Taxable14,600 / 14,600.00
Building Value / Taxable22,910 / 22,910.00
Total Value / Taxable37,510 / 37,510.00
Clean & GreenInactive
Homestead StatusInactive
Farmstead StatusInactive
Lerta Amount0
Lerta Expiration Year0
Residential Data
Card 1
     StyleOLD STYLE
     BasementFULL
     Year Built1924
     Exterior WallCOMPOSITION
     Total Living Area1908
     Full Baths2
     Half Baths0
     Fuel TypeGAS
     HeatingCENTRAL
     Heating SystemFORCED AIR
     Stories2.0
     Total Bedrooms3
     Total Family Rooms0
     Total Rooms9
     Fireplaces0
Other Buildings & Yards
No OBY Data Found
Sales History
Sale DateTypePriceBook / PageOther Info
5/24/2022LAND & BUILDING690002022 / 011073SPECIAL WARRANTY DEED
10/3/2017LAND & BUILDING02017 / 021713DEED
1/4/2012LAND & BUILDING290002012 / 000254SPECIAL WARRANTY DEED
8/10/2011LAND & BUILDING225002011 / 018699SPECIAL WARRANTY DEED
3/29/2011LAND & BUILDING02011 / 007080SHERIFF'S DED
7/25/2003LAND & BUILDING680001041 / 0259WARRANTY/SURVIVORSHIP DEED
2/29/2000 00688 / 2372 



Parcel Sketches

Residential Card 1

Residential Card 1
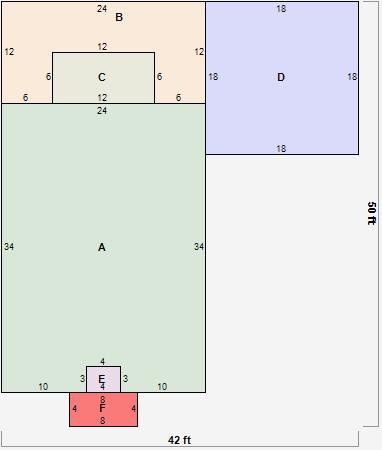
AMAIN804 square feet
B 1S FR ONE STORY FRAME 216 square feet
C 1S FR ONE STORY FRAME OFP OPEN FRAME PORCH 72 square feet
D FR GR FRAME GARAGE 324 square feet
E OFP OPEN FRAME PORCH FROVR FRAME OVERHANG 12 square feet
F MA STOOP/TERR MAS STOOP 32 square feet

Parcel Images

parcel photo