Elected Officials
Courts
Departments
Initiatives
Open Government
About
Login / Register
Home
/
Property & Tax Records
/
Property Records
/
Property & Tax Search
/
Parcel Profile
/
Print View
Search for Another Parcel
Parcel Profile
Historical Card
Sketches
Photos
Tax Map
Taxes
Print View
Print This Page
Address: 12 BLUFF ST
Parcel: 18053030020300
Parcel Profile
Address
12 | BLUFF | ST
Street Status
PAVED | SIDEWALK
School District
CITY OF ERIE SCHOOL
Acreage
0.0969
Classification
R
Land Use Code
SINGLE FAMILY
Legal Description
12 BLUFF ST IRR
Square Feet
1210
Topo
ABOVE STREET
Utility
ALL PUBLIC
Zoning
Please contact your municipal zoning officer
Deed Book
0144
Deed Page
1122
2026 Tax Values
Land Value / Taxable
16,500 / 16,500.00
Building Value / Taxable
38,840 / 38,840.00
Total Value / Taxable
55,340 / 55,340.00
Clean & Green
Inactive
Homestead Status
Active
Farmstead Status
Inactive
Lerta Amount
0
Lerta Expiration Year
0
Residential Data
Card 1
Style
OLD STYLE
Basement
FULL
Year Built
1900
Exterior Wall
ALUMINUM/VINYL
Total Living Area
1210
Full Baths
1
Half Baths
0
Fuel Type
GAS
Heating
CENTRAL
Heating System
FORCED AIR
Stories
1.0
Total Bedrooms
3
Total Family Rooms
0
Total Rooms
6
Fireplaces
1
Other Buildings & Yards
No OBY Data Found
Sales History
Sale Date
Type
Price
Book / Page
Other Info
11/26/1990
0
0144 / 1122
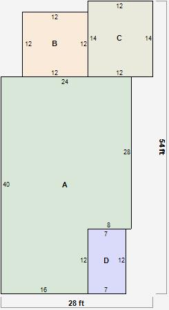
Parcel Sketches
Residential Card 1
A
MAIN
864 square feet
B
EFP ENCL FRAME PORCH
144 square feet
C
OFP OPEN FRAME PORCH
168 square feet
D
OFP OPEN FRAME PORCH
84 square feet
Parcel Images