Elected Officials
Courts
Departments
Initiatives
Open Government
About
Login / Register
Home
/
Property & Tax Records
/
Property Records
/
Property & Tax Search
/
Parcel Profile
/
Print View
Search for Another Parcel
Parcel Profile
Historical Card
Sketches
Photos
Tax Map
Taxes
Print View
Print This Page
Address: 70 ORCHARD ST
Parcel: 18053030030300
Parcel Profile
Address
70 | ORCHARD | ST
Street Status
PAVED | SIDEWALK
School District
CITY OF ERIE SCHOOL
Acreage
0.1726
Classification
R
Land Use Code
TWO FAMILY
Legal Description
70 ORCHARD ST IRR
Square Feet
1536
Topo
LEVEL
Utility
ALL PUBLIC
Zoning
Please contact your municipal zoning officer
Deed Book
2024
Deed Page
000492
2026 Tax Values
Land Value / Taxable
18,300 / 18,300.00
Building Value / Taxable
51,600 / 51,600.00
Total Value / Taxable
69,900 / 69,900.00
Clean & Green
Inactive
Homestead Status
Active
Farmstead Status
Inactive
Lerta Amount
0
Lerta Expiration Year
0
Residential Data
Card 1
Style
OLD STYLE
Basement
FULL
Year Built
1903
Exterior Wall
ALUMINUM/VINYL
Total Living Area
1536
Full Baths
2
Half Baths
0
Fuel Type
GAS
Heating
CENTRAL
Heating System
FORCED AIR
Stories
2.0
Total Bedrooms
4
Total Family Rooms
0
Total Rooms
10
Fireplaces
0
Other Buildings & Yards
Description
Built
Width
Length
Area
FRAME OR CB DETACHED GARAGE
1930
18
20
360
Sales History
Sale Date
Type
Price
Book / Page
Other Info
1/11/2024
LAND & BUILDING
90000
2024 / 000492
SPECIAL WARRANTY DEED
6/26/2009
LAND & BUILDING
70000
1572 / 0345
SPECIAL WARRANTY DEED
2/1/2002
LAND & BUILDING
51500
850 / 1496
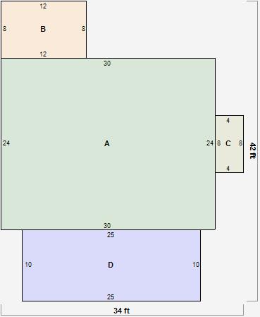
Parcel Sketches
Residential Card 1
A
MAIN
720 square feet
B
1S FR ONE STORY FRAME
96 square feet
C
EFP ENCL FRAME PORCH
32 square feet
D
OFP OPEN FRAME PORCH
250 square feet
Parcel Images
Please note:
this tab is for informational purposes only and may not show all delinquencies, see the Taxes tab for more accurate delinquent taxes due.