Elected Officials
Courts
Departments
Initiatives
Open Government
About
Login / Register
Home
/
Property & Tax Records
/
Property Records
/
Property & Tax Search
/
Parcel Profile
/
Print View
Search for Another Parcel
Parcel Profile
Historical Card
Sketches
Photos
Tax Map
Taxes
Print View
Print This Page
Address: 66 ORCHARD ST
Parcel: 18053030030400
Parcel Profile
Address
66 | ORCHARD | ST
Street Status
PAVED | SIDEWALK
School District
CITY OF ERIE SCHOOL
Acreage
0.1745
Classification
R
Land Use Code
SINGLE FAMILY
Legal Description
66 ORCHARD ST IRR
Square Feet
1362
Topo
LEVEL
Utility
ALL PUBLIC
Zoning
Please contact your municipal zoning officer
Deed Book
2018
Deed Page
007424
2025 Tax Values
Land Value / Taxable
18,300 / 18,300.00
Building Value / Taxable
54,730 / 54,730.00
Total Value / Taxable
73,030 / 73,030.00
Clean & Green
Inactive
Homestead Status
Active
Farmstead Status
Inactive
Lerta Amount
0
Lerta Expiration Year
0
Residential Data
Card 1
Style
OLD STYLE
Basement
FULL
Year Built
1917
Exterior Wall
ALUMINUM/VINYL
Total Living Area
1362
Full Baths
1
Half Baths
0
Fuel Type
GAS
Heating
CENTRAL
Heating System
FORCED AIR
Stories
2.0
Total Bedrooms
3
Total Family Rooms
0
Total Rooms
6
Fireplaces
0
Other Buildings & Yards
No OBY Data Found
Sales History
Sale Date
Type
Price
Book / Page
Other Info
4/20/2018
LAND & BUILDING
65000
2018 / 007424
SPECIAL WARRANTY DEED
12/18/2000
LAND & BUILDING
56000
743 / 1351
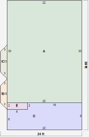
Parcel Sketches
Residential Card 1
A
MAIN
660 square feet
B
FRBAY FRAME BAY
14 square feet
C
UNFIN BSMT BASEMENT UNFINISHED FRBAY FRAME BAY
16 square feet
D
EFP ENCL FRAME PORCH
164 square feet
E
EFP ENCL FRAME PORCH FRBAY FRAME BAY
12 square feet
Parcel Images