Elected Officials
Courts
Departments
Initiatives
Open Government
About
Login / Register
Home
/
Property & Tax Records
/
Property Records
/
Property & Tax Search
/
Parcel Profile
/
Print View
Search for Another Parcel
Parcel Profile
Historical Card
Sketches
Photos
Tax Map
Taxes
Print View
Print This Page
Address: 48 ORCHARD ST
Parcel: 18053030030900
Parcel Profile
Address
48 | ORCHARD | ST
Street Status
PAVED | SIDEWALK
School District
CITY OF ERIE SCHOOL
Acreage
0.1534
Classification
R
Land Use Code
SINGLE FAMILY
Legal Description
48 ORCHARD ST 40XIRR
Square Feet
1512
Topo
LEVEL
Utility
ALL PUBLIC
Zoning
Please contact your municipal zoning officer
Deed Book
1076
Deed Page
1938
2026 Tax Values
Land Value / Taxable
18,000 / 18,000.00
Building Value / Taxable
57,190 / 57,190.00
Total Value / Taxable
75,190 / 75,190.00
Clean & Green
Inactive
Homestead Status
Active
Farmstead Status
Inactive
Lerta Amount
0
Lerta Expiration Year
0
Residential Data
Card 1
Style
OLD STYLE
Basement
FULL
Year Built
1898
Exterior Wall
ALUMINUM/VINYL
Total Living Area
1512
Full Baths
1
Half Baths
1
Fuel Type
GAS
Heating
CENTRAL
Heating System
FORCED AIR
Stories
2.0
Total Bedrooms
4
Total Family Rooms
0
Total Rooms
8
Fireplaces
0
Other Buildings & Yards
Description
Built
Width
Length
Area
FRAME OR CB DETACHED GARAGE
2004
24
24
576
Sales History
Sale Date
Type
Price
Book / Page
Other Info
10/16/2003
LAND & BUILDING
39500
1076 / 1938
DEED
9/24/1976
0
1237 / 0526
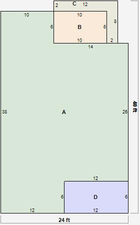
Parcel Sketches
Residential Card 1
A
MAIN
756 square feet
B
OFP OPEN FRAME PORCH EFP ENCL FRAME PORCH
60 square feet
C
EFP ENCL FRAME PORCH
36 square feet
D
OFP OPEN FRAME PORCH
72 square feet
Parcel Images
Please note:
this tab is for informational purposes only and may not show all delinquencies, see the Taxes tab for more accurate delinquent taxes due.