Elected Officials
Courts
Departments
Initiatives
Open Government
About
Login / Register
Home
/
Property & Tax Records
/
Property Records
/
Property & Tax Search
/
Parcel Profile
/
Print View
Search for Another Parcel
Parcel Profile
Historical Card
Sketches
Photos
Tax Map
Taxes
Print View
Print This Page
Address: 3042 GLENWOOD PARK AVE
Parcel: 18053031010300
Parcel Profile
Address
3042 | GLENWOOD PARK | AVE
Street Status
PAVED | SIDEWALK
School District
CITY OF ERIE SCHOOL
Acreage
0.0759
Classification
R
Land Use Code
SINGLE FAMILY
Legal Description
3042 GLENWOOD PARK AVE 35XIRR
Square Feet
1320
Topo
ABOVE STREET
Utility
ALL PUBLIC
Zoning
Please contact your municipal zoning officer
Deed Book
0615
Deed Page
2265
2026 Tax Values
Land Value / Taxable
15,400 / 15,400.00
Building Value / Taxable
59,480 / 59,480.00
Total Value / Taxable
74,880 / 74,880.00
Clean & Green
Inactive
Homestead Status
Active
Farmstead Status
Inactive
Lerta Amount
0
Lerta Expiration Year
0
Residential Data
Card 1
Style
OLD STYLE
Basement
FULL
Year Built
1890
Exterior Wall
ALUMINUM/VINYL
Total Living Area
1320
Full Baths
1
Half Baths
0
Fuel Type
GAS
Heating
CENTRAL
Heating System
FORCED AIR
Stories
2.0
Total Bedrooms
3
Total Family Rooms
1
Total Rooms
6
Fireplaces
0
Other Buildings & Yards
Description
Built
Width
Length
Area
FRAME OR CB DETACHED GARAGE
1995
24
32
768
Sales History
Sale Date
Type
Price
Book / Page
Other Info
2/3/1999
LAND & BUILDING
49000
0615 / 2265
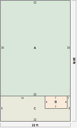
Parcel Sketches
Residential Card 1
A
MAIN
660 square feet
B
EFP ENCL FRAME PORCH
28 square feet
C
OFP OPEN FRAME PORCH
148 square feet
Parcel Images
Please note:
this tab is for informational purposes only and may not show all delinquencies, see the Taxes tab for more accurate delinquent taxes due.