Elected Officials
Courts
Departments
Initiatives
Open Government
About
Login / Register
Home
/
Property & Tax Records
/
Property Records
/
Property & Tax Search
/
Parcel Profile
/
Print View
Search for Another Parcel
Parcel Profile
Historical Card
Sketches
Photos
Tax Map
Taxes
Print View
Print This Page
Address: 50 KELLOGG ST
Parcel: 18053031020600
Parcel Profile
Address
50 | KELLOGG | ST
Street Status
PAVED | SIDEWALK
School District
CITY OF ERIE SCHOOL
Acreage
0.0651
Classification
R
Land Use Code
SINGLE FAMILY
Legal Description
50 KELLOGG ST 35 X 82
Square Feet
750
Topo
ABOVE STREET
Utility
ALL PUBLIC
Zoning
Please contact your municipal zoning officer
Deed Book
1445
Deed Page
1829
2026 Tax Values
Land Value / Taxable
14,900 / 14,900.00
Building Value / Taxable
40,430 / 40,430.00
Total Value / Taxable
55,330 / 55,330.00
Clean & Green
Inactive
Homestead Status
Active
Farmstead Status
Inactive
Lerta Amount
0
Lerta Expiration Year
0
Residential Data
Card 1
Style
BUNGALOW
Basement
FULL
Year Built
1888
Exterior Wall
ALUMINUM/VINYL
Total Living Area
750
Full Baths
1
Half Baths
0
Fuel Type
GAS
Heating
CENTRAL
Heating System
FORCED AIR
Stories
1.0
Total Bedrooms
3
Total Family Rooms
0
Total Rooms
5
Fireplaces
0
Other Buildings & Yards
No OBY Data Found
Sales History
Sale Date
Type
Price
Book / Page
Other Info
9/7/2007
LAND & BUILDING
40000
1445 / 1829
SPECIAL WARRANTY DEED
1/1/1956
0
1052 / 579
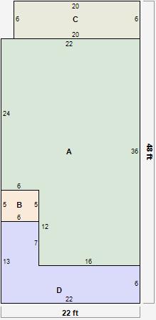
Parcel Sketches
Residential Card 1
A
MAIN
720 square feet
B
1S FR ONE STORY FRAME
30 square feet
C
EFP ENCL FRAME PORCH
120 square feet
D
OFP OPEN FRAME PORCH
174 square feet
Parcel Images
Please note:
this tab is for informational purposes only and may not show all delinquencies, see the Taxes tab for more accurate delinquent taxes due.