Elected Officials
Courts
Departments
Initiatives
Open Government
About
Login / Register
Home
/
Property & Tax Records
/
Property Records
/
Property & Tax Search
/
Parcel Profile
/
Print View
Search for Another Parcel
Parcel Profile
Historical Card
Sketches
Photos
Tax Map
Taxes
Print View
Print This Page
Address: 28 KELLOGG ST
Parcel: 18053031021300
Parcel Profile
Address
28 | KELLOGG | ST
Street Status
PAVED | SIDEWALK
School District
CITY OF ERIE SCHOOL
Acreage
0.1209
Classification
R
Land Use Code
SINGLE FAMILY
Legal Description
28 KELLOGG ST 65 X 82
Square Feet
1664
Topo
LEVEL
Utility
ALL PUBLIC
Zoning
Please contact your municipal zoning officer
Deed Book
2018
Deed Page
008951
2026 Tax Values
Land Value / Taxable
17,500 / 17,500.00
Building Value / Taxable
60,050 / 60,050.00
Total Value / Taxable
77,550 / 77,550.00
Clean & Green
Inactive
Homestead Status
Active
Farmstead Status
Inactive
Lerta Amount
0
Lerta Expiration Year
0
Residential Data
Card 1
Style
OLD STYLE
Basement
FULL
Year Built
1923
Exterior Wall
BRICK
Total Living Area
1664
Full Baths
1
Half Baths
0
Fuel Type
GAS
Heating
CENTRAL
Heating System
HOT WATER
Stories
2.0
Total Bedrooms
4
Total Family Rooms
0
Total Rooms
8
Fireplaces
0
Other Buildings & Yards
Description
Built
Width
Length
Area
FRAME OR CB DETACHED GARAGE
1925
48
24
1152
Sales History
Sale Date
Type
Price
Book / Page
Other Info
5/11/2018
LAND & BUILDING
0
2018 / 008951
QUIT CLAIM DEED
8/16/1968
0
0987 / 0398
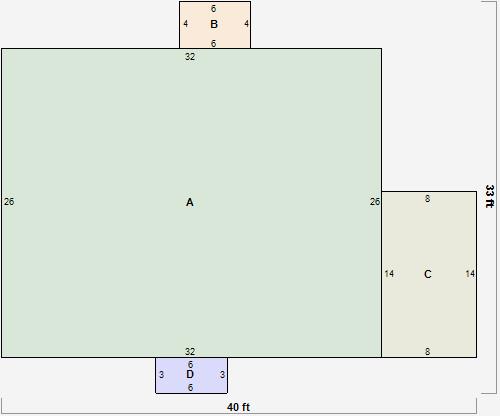
Parcel Sketches
Residential Card 1
A
MAIN
832 square feet
B
EFP ENCL FRAME PORCH
24 square feet
C
OFP OPEN FRAME PORCH
112 square feet
D
EFP ENCL FRAME PORCH
18 square feet
Parcel Images