Elected Officials
Courts
Departments
Initiatives
Open Government
About
Login / Register
Home
/
Property & Tax Records
/
Property Records
/
Property & Tax Search
/
Parcel Profile
/
Print View
Search for Another Parcel
Parcel Profile
Historical Card
Sketches
Photos
Tax Map
Taxes
Print View
Print This Page
Address: 47 ORCHARD ST
Parcel: 18053031023800
Parcel Profile
Address
47 | ORCHARD | ST
Street Status
PAVED | SIDEWALK
School District
CITY OF ERIE SCHOOL
Acreage
0.1515
Classification
R
Land Use Code
TWO FAMILY
Legal Description
47 ORCHARD ST 40XIRR
Square Feet
2750
Topo
LEVEL
Utility
ALL PUBLIC
Zoning
Please contact your municipal zoning officer
2026 Tax Values
Land Value / Taxable
18,000 / 18,000.00
Building Value / Taxable
56,220 / 56,220.00
Total Value / Taxable
74,220 / 74,220.00
Clean & Green
Inactive
Homestead Status
Inactive
Farmstead Status
Inactive
Lerta Amount
0
Lerta Expiration Year
0
Residential Data
Card 1
Style
OLD STYLE
Basement
FULL
Year Built
1903
Exterior Wall
BRICK
Total Living Area
2750
Full Baths
2
Half Baths
0
Fuel Type
GAS
Heating
CENTRAL
Heating System
HOT WATER
Stories
2.0
Total Bedrooms
4
Total Family Rooms
0
Total Rooms
12
Fireplaces
0
Other Buildings & Yards
No OBY Data Found
Sales History
Sale Date
Type
Price
Book / Page
Other Info
12/1/1998
LAND & BUILDING
38000
/
12/31/1996
0
0478 / 0424
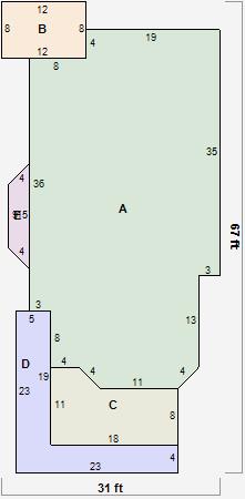
Parcel Sketches
Residential Card 1
A
MAIN
1243 square feet
B
1S FR ONE STORY FRAME 1S FR ONE STORY FRAME
96 square feet
C
OMP OPEN MASONRY PORCH EFP ENCL FRAME PORCH
161 square feet
D
EMP ENCL MASONRY PORCH
187 square feet
E
UNFIN BSMT BASEMENT UNFINISHED 1SMAS MASONRY 1SMAS MASONRY
36 square feet
Parcel Images
Please note:
this tab is for informational purposes only and may not show all delinquencies, see the Taxes tab for more accurate delinquent taxes due.