Elected Officials
Courts
Departments
Initiatives
Open Government
About
Login / Register
Home
/
Property & Tax Records
/
Property Records
/
Property & Tax Search
/
Parcel Profile
/
Print View
Search for Another Parcel
Parcel Profile
Historical Card
Sketches
Photos
Tax Map
Taxes
Print View
Print This Page
Address: 301 GRIDLEY AVE
Parcel: 18053033010000
Parcel Profile
Address
301 | GRIDLEY | AVE
Street Status
PAVED
School District
CITY OF ERIE SCHOOL
Acreage
0.1876
Classification
R
Land Use Code
SINGLE FAMILY
Legal Description
301 GRIDLEY AVE 68X129.75
Square Feet
2344
Topo
LEVEL
Utility
ALL PUBLIC
Zoning
Please contact your municipal zoning officer
Deed Book
0717
Deed Page
0539
2026 Tax Values
Land Value / Taxable
19,300 / 19,300.00
Building Value / Taxable
71,700 / 71,700.00
Total Value / Taxable
91,000 / 91,000.00
Clean & Green
Inactive
Homestead Status
Active
Farmstead Status
Inactive
Lerta Amount
0
Lerta Expiration Year
0
Residential Data
Card 1
Style
OLD STYLE
Basement
FULL
Year Built
1900
Exterior Wall
ALUMINUM/VINYL
Total Living Area
2344
Full Baths
1
Half Baths
1
Fuel Type
GAS
Heating
CENTRAL A/C
Heating System
FORCED AIR
Stories
2.0
Total Bedrooms
4
Total Family Rooms
1
Total Rooms
8
Fireplaces
1
Other Buildings & Yards
Description
Built
Width
Length
Area
FRAME OR CB DETACHED GARAGE
1998
15
24
360
Sales History
Sale Date
Type
Price
Book / Page
Other Info
7/27/2000
0
0717 / 0539
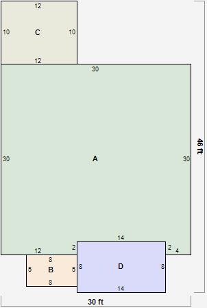
Parcel Sketches
Residential Card 1
A
MAIN
872 square feet
B
OFP OPEN FRAME PORCH
40 square feet
C
1S FR ONE STORY FRAME
120 square feet
D
EFP ENCL FRAME PORCH
112 square feet
Parcel Images
Please note:
this tab is for informational purposes only and may not show all delinquencies, see the Taxes tab for more accurate delinquent taxes due.