Elected Officials
Courts
Departments
Initiatives
Open Government
About
Login / Register
Home
/
Property & Tax Records
/
Property Records
/
Property & Tax Search
/
Parcel Profile
/
Print View
Search for Another Parcel
Parcel Profile
Historical Card
Sketches
Photos
Tax Map
Taxes
Print View
Print This Page
Address: 3408 GLENSIDE AVE
Parcel: 18053033020500
Parcel Profile
Address
3408 | GLENSIDE | AVE
Street Status
PAVED | SIDEWALK
School District
CITY OF ERIE SCHOOL
Acreage
0.1928
Classification
R
Land Use Code
SINGLE FAMILY
Legal Description
3408 GLENSIDE AVE IRR
Square Feet
1364
Topo
LEVEL
Utility
ALL PUBLIC
Zoning
Please contact your municipal zoning officer
Deed Book
0421
Deed Page
0368
2026 Tax Values
Land Value / Taxable
18,600 / 18,600.00
Building Value / Taxable
55,780 / 55,780.00
Total Value / Taxable
74,380 / 74,380.00
Clean & Green
Inactive
Homestead Status
Active
Farmstead Status
Inactive
Lerta Amount
0
Lerta Expiration Year
0
Residential Data
Card 1
Style
OLD STYLE
Basement
FULL
Year Built
1925
Exterior Wall
FRAME
Total Living Area
1364
Full Baths
1
Half Baths
0
Fuel Type
GAS
Heating
CENTRAL
Heating System
FORCED AIR
Stories
2.0
Total Bedrooms
2
Total Family Rooms
0
Total Rooms
6
Fireplaces
0
Other Buildings & Yards
No OBY Data Found
Sales History
Sale Date
Type
Price
Book / Page
Other Info
1/19/1996
0
0421 / 0368
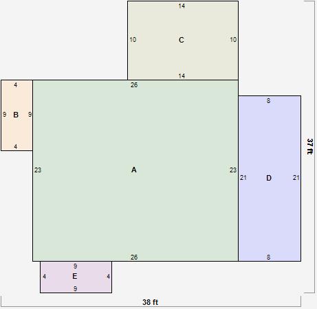
Parcel Sketches
Residential Card 1
A
MAIN
598 square feet
B
EFP ENCL FRAME PORCH
36 square feet
C
EFP ENCL FRAME PORCH
140 square feet
D
1S FR ONE STORY FRAME
168 square feet
E
EFP ENCL FRAME PORCH
36 square feet
Parcel Images
Please note:
this tab is for informational purposes only and may not show all delinquencies, see the Taxes tab for more accurate delinquent taxes due.