Elected Officials
Courts
Departments
Initiatives
Open Government
About
Login / Register
Home
/
Property & Tax Records
/
Property Records
/
Property & Tax Search
/
Parcel Profile
/
Print View
Search for Another Parcel
Parcel Profile
Historical Card
Sketches
Photos
Tax Map
Taxes
Print View
Print This Page
Address: 3336 GLENSIDE AVE
Parcel: 18053033020900
Parcel Profile
Address
3336 | GLENSIDE | AVE
Street Status
PAVED | SIDEWALK
School District
CITY OF ERIE SCHOOL
Acreage
0.3278
Classification
R
Land Use Code
SINGLE FAMILY
Legal Description
3336 GLENSIDE AVE IRR
Square Feet
1735
Topo
LEVEL
Utility
ALL PUBLIC
Zoning
Please contact your municipal zoning officer
Deed Book
0130
Deed Page
1250
2026 Tax Values
Land Value / Taxable
20,700 / 20,700.00
Building Value / Taxable
86,060 / 86,060.00
Total Value / Taxable
106,760 / 106,760.00
Clean & Green
Inactive
Homestead Status
Active
Farmstead Status
Inactive
Lerta Amount
0
Lerta Expiration Year
0
Residential Data
Card 1
Style
CAPE
Basement
FULL
Year Built
1926
Exterior Wall
FRAME
Total Living Area
1735
Full Baths
1
Half Baths
1
Fuel Type
GAS
Heating
CENTRAL
Heating System
HOT WATER
Stories
1.0
Total Bedrooms
3
Total Family Rooms
0
Total Rooms
7
Fireplaces
1
Other Buildings & Yards
No OBY Data Found
Sales History
Sale Date
Type
Price
Book / Page
Other Info
7/19/1990
0
0130 / 1250
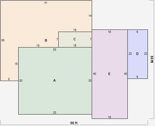
Parcel Sketches
Residential Card 1
A
MAIN
990 square feet
B
WDDCK WOOD DECKS
876 square feet
C
1S FR ONE STORY FRAME
105 square feet
D
OMP OPEN MASONRY PORCH
198 square feet
E
1S FR ONE STORY FRAME
640 square feet
Parcel Images
Please note:
this tab is for informational purposes only and may not show all delinquencies, see the Taxes tab for more accurate delinquent taxes due.