Elected Officials
Courts
Departments
Initiatives
Open Government
About
Login / Register
Home
/
Property & Tax Records
/
Property Records
/
Property & Tax Search
/
Parcel Profile
/
Print View
Search for Another Parcel
Parcel Profile
Historical Card
Sketches
Photos
Tax Map
Taxes
Print View
Print This Page
Address: 258 GRIDLEY AVE
Parcel: 18053034022300
Parcel Profile
Address
258 | GRIDLEY | AVE
Street Status
PAVED | SIDEWALK
School District
CITY OF ERIE SCHOOL
Acreage
0.2388
Classification
R
Land Use Code
SINGLE FAMILY
Legal Description
258 GRIDLEY AVE 80 X 130
Square Feet
1812
Topo
LEVEL
Utility
ALL PUBLIC
Zoning
Please contact your municipal zoning officer
Deed Book
2022
Deed Page
003980
2026 Tax Values
Land Value / Taxable
19,300 / 19,300.00
Building Value / Taxable
69,840 / 69,840.00
Total Value / Taxable
89,140 / 89,140.00
Clean & Green
Inactive
Homestead Status
Active
Farmstead Status
Inactive
Lerta Amount
0
Lerta Expiration Year
0
Residential Data
Card 1
Style
CONVENTIONAL
Basement
FULL
Year Built
1908
Exterior Wall
ALUMINUM/VINYL
Total Living Area
1812
Full Baths
1
Half Baths
0
Fuel Type
GAS
Heating
CENTRAL
Heating System
FORCED AIR
Stories
2.0
Total Bedrooms
4
Total Family Rooms
1
Total Rooms
8
Fireplaces
0
Other Buildings & Yards
Description
Built
Width
Length
Area
FRAME OR CB DETACHED GARAGE
1940
20
20
400
Sales History
Sale Date
Type
Price
Book / Page
Other Info
2/23/2022
LAND & BUILDING
0
2022 / 003980
QUIT CLAIM DEED
12/20/2006
LAND & BUILDING
0
1384 / 0601
WARRANTY/SURVIVORSHIP DEED
5/5/1986
0
1627 / 0267
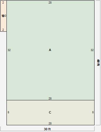
Parcel Sketches
Residential Card 1
A
MAIN
896 square feet
B
UNFIN BSMT BASEMENT UNFINISHED FRBAY FRAME BAY
20 square feet
C
OFP OPEN FRAME PORCH
224 square feet
Parcel Images
Please note:
this tab is for informational purposes only and may not show all delinquencies, see the Taxes tab for more accurate delinquent taxes due.