Elected Officials
Courts
Departments
Initiatives
Open Government
About
Login / Register
Home
/
Property & Tax Records
/
Property Records
/
Property & Tax Search
/
Parcel Profile
/
Print View
Search for Another Parcel
Parcel Profile
Historical Card
Sketches
Photos
Tax Map
Taxes
Print View
Print This Page
Address: 232 GRIDLEY AVE
Parcel: 18053034022900
Parcel Profile
Address
232 | GRIDLEY | AVE
Street Status
PAVED | SIDEWALK
School District
CITY OF ERIE SCHOOL
Acreage
0.1940
Classification
R
Land Use Code
SINGLE FAMILY
Legal Description
232 GRIDLEY AVE LOT 78 65 X 130
Square Feet
1540
Topo
LEVEL
Utility
ALL PUBLIC
Zoning
Please contact your municipal zoning officer
Deed Book
2018
Deed Page
025190
2026 Tax Values
Land Value / Taxable
18,600 / 18,600.00
Building Value / Taxable
71,280 / 71,280.00
Total Value / Taxable
89,880 / 89,880.00
Clean & Green
Inactive
Homestead Status
Active
Farmstead Status
Inactive
Lerta Amount
0
Lerta Expiration Year
0
Residential Data
Card 1
Style
CONVENTIONAL
Basement
FULL
Year Built
1909
Exterior Wall
ALUMINUM/VINYL
Total Living Area
1540
Full Baths
1
Half Baths
1
Fuel Type
GAS
Heating
CENTRAL
Heating System
FORCED AIR
Stories
2.0
Total Bedrooms
4
Total Family Rooms
1
Total Rooms
8
Fireplaces
0
Other Buildings & Yards
Description
Built
Width
Length
Area
FRAME UTILITY SHED
1909
18
23
414
Sales History
Sale Date
Type
Price
Book / Page
Other Info
12/6/2018
LAND & BUILDING
0
2018 / 025190
DEED
3/27/2007
LAND & BUILDING
86000
1404 / 0086
WARRANTY/SURVIVORSHIP DEED
8/14/2006
LAND & BUILDING
70000
1353 / 0418
DEED
4/25/1994
0
0330 / 1605
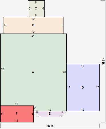
Parcel Sketches
Residential Card 1
A
MAIN
648 square feet
B
EFP ENCL FRAME PORCH
132 square feet
C
WDDCK WOOD DECKS
36 square feet
D
1S FR ONE STORY FRAME
204 square feet
E
UNFIN BSMT BASEMENT UNFINISHED FRBAY FRAME BAY FROVR FRAME OVERHANG
20 square feet
F
OFP OPEN FRAME PORCH
72 square feet
Parcel Images