Elected Officials
Courts
Departments
Initiatives
Open Government
About
Login / Register
Home
/
Property & Tax Records
/
Property Records
/
Property & Tax Search
/
Parcel Profile
/
Print View
Search for Another Parcel
Parcel Profile
Historical Card
Sketches
Photos
Tax Map
Taxes
Print View
Print This Page
Address: 3315 GLENSIDE AVE
Parcel: 18053034040600
Parcel Profile
Address
3315 | GLENSIDE | AVE
Street Status
PAVED | SIDEWALK
School District
CITY OF ERIE SCHOOL
Acreage
0.1488
Classification
R
Land Use Code
SINGLE FAMILY
Legal Description
3315 GLENSIDE AVE IRR
Square Feet
1870
Topo
LEVEL
Utility
ALL PUBLIC
Zoning
Please contact your municipal zoning officer
Deed Book
1367
Deed Page
1427
2026 Tax Values
Land Value / Taxable
17,900 / 17,900.00
Building Value / Taxable
100,800 / 100,800.00
Total Value / Taxable
118,700 / 118,700.00
Clean & Green
Inactive
Homestead Status
Active
Farmstead Status
Inactive
Lerta Amount
0
Lerta Expiration Year
0
Residential Data
Card 1
Style
TUDOR
Basement
FULL
Year Built
1926
Exterior Wall
STUCCO
Total Living Area
1870
Full Baths
2
Half Baths
0
Fuel Type
GAS
Heating
CENTRAL
Heating System
FORCED AIR
Stories
2.0
Total Bedrooms
3
Total Family Rooms
1
Total Rooms
7
Fireplaces
1
Other Buildings & Yards
No OBY Data Found
Sales History
Sale Date
Type
Price
Book / Page
Other Info
10/11/2006
LAND & BUILDING
118000
1367 / 1427
DEED
5/2/2003
LAND & BUILDING
112700
1006 / 1725
9/25/2001
LAND & BUILDING
112000
811 / 2305
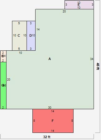
Parcel Sketches
Residential Card 1
A
MAIN
880 square feet
B
UNFIN BSMT BASEMENT UNFINISHED FRBAY FRAME BAY FROVR FRAME OVERHANG
8 square feet
C
MA STOOP/TERR MAS STOOP
50 square feet
D
OMP OPEN MASONRY PORCH
30 square feet
E
UNFIN BSMT BASEMENT UNFINISHED OFP OPEN FRAME PORCH 1S FR ONE STORY FRAME
30 square feet
F
EFP ENCL FRAME PORCH
112 square feet
G
UNFIN BSMT BASEMENT UNFINISHED FRBAY FRAME BAY FROVR FRAME OVERHANG
32 square feet
Parcel Images
Please note:
this tab is for informational purposes only and may not show all delinquencies, see the Taxes tab for more accurate delinquent taxes due.