Elected Officials
Courts
Departments
Initiatives
Open Government
About
Login / Register
Home
/
Property & Tax Records
/
Property Records
/
Property & Tax Search
/
Parcel Profile
/
Print View
Search for Another Parcel
Parcel Profile
Historical Card
Sketches
Photos
Tax Map
Taxes
Print View
Print This Page
Address: 60 W 34 ST
Parcel: 18053035021400
Parcel Profile
Address
60 | W | 34 | ST
Street Status
PAVED | SIDEWALK
School District
CITY OF ERIE SCHOOL
Acreage
0.1088
Classification
R
Land Use Code
SINGLE FAMILY
Legal Description
60 W 34 ST 81.38X57.14
Square Feet
1956
Topo
LEVEL
Utility
ALL PUBLIC
Zoning
Please contact your municipal zoning officer
Deed Book
0643
Deed Page
2364
2026 Tax Values
Land Value / Taxable
17,100 / 17,100.00
Building Value / Taxable
68,300 / 68,300.00
Total Value / Taxable
85,400 / 85,400.00
Clean & Green
Inactive
Homestead Status
Active
Farmstead Status
Inactive
Lerta Amount
0
Lerta Expiration Year
0
Residential Data
Card 1
Style
OLD STYLE
Basement
FULL
Year Built
1925
Exterior Wall
FRAME
Total Living Area
1956
Full Baths
1
Half Baths
1
Fuel Type
GAS
Heating
CENTRAL
Heating System
HOT WATER
Stories
2.0
Total Bedrooms
3
Total Family Rooms
0
Total Rooms
7
Fireplaces
1
Other Buildings & Yards
No OBY Data Found
Sales History
Sale Date
Type
Price
Book / Page
Other Info
6/18/1999
0
0643 / 2364
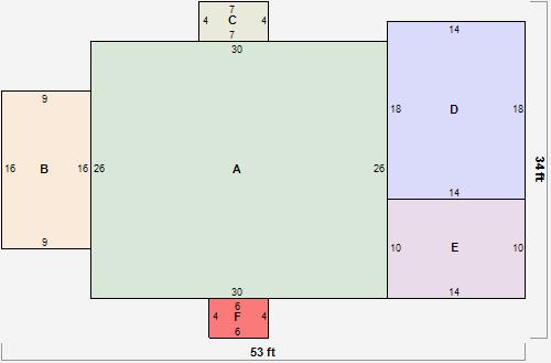
Parcel Sketches
Residential Card 1
A
MAIN
780 square feet
B
1S FR ONE STORY FRAME
144 square feet
C
MA STOOP/TERR MAS STOOP
28 square feet
D
1S FR ONE STORY FRAME
252 square feet
E
OFP OPEN FRAME PORCH
140 square feet
F
MA STOOP/TERR MAS STOOP
24 square feet
Parcel Images
Please note:
this tab is for informational purposes only and may not show all delinquencies, see the Taxes tab for more accurate delinquent taxes due.