Elected Officials
Courts
Departments
Initiatives
Open Government
About
Login / Register
Home
/
Property & Tax Records
/
Property Records
/
Property & Tax Search
/
Parcel Profile
/
Print View
Search for Another Parcel
Parcel Profile
Historical Card
Sketches
Photos
Tax Map
Taxes
Print View
Print This Page
Address: 42 W 34 ST
Parcel: 18053035021600
Parcel Profile
Address
42 | W | 34 | ST
Street Status
PAVED | SIDEWALK
School District
CITY OF ERIE SCHOOL
Acreage
0.0957
Classification
R
Land Use Code
SINGLE FAMILY
Legal Description
42 W 34 ST 65 X 69
Square Feet
1318
Topo
LEVEL
Utility
ALL PUBLIC
Zoning
Please contact your municipal zoning officer
Deed Book
2024
Deed Page
016221
2026 Tax Values
Land Value / Taxable
16,400 / 16,400.00
Building Value / Taxable
58,660 / 58,660.00
Total Value / Taxable
75,060 / 75,060.00
Clean & Green
Inactive
Homestead Status
Active
Farmstead Status
Inactive
Lerta Amount
0.00
Lerta Expiration Year
2016
Residential Data
Card 1
Style
CAPE
Basement
FULL
Year Built
1925
Exterior Wall
COMPOSITION
Total Living Area
1318
Full Baths
1
Half Baths
0
Fuel Type
GAS
Heating
CENTRAL
Heating System
FORCED AIR
Stories
1.5
Total Bedrooms
2
Total Family Rooms
0
Total Rooms
6
Fireplaces
1
Other Buildings & Yards
Description
Built
Width
Length
Area
FRAME OR CB DETACHED GARAGE
1945
12
18
216
Sales History
Sale Date
Type
Price
Book / Page
Other Info
10/7/2024
LAND & BUILDING
0
2024 / 016221
QUIT CLAIM DEED
2/1/2005
LAND & BUILDING
71000
1208 / 0428
WARRANTY/SURVIVORSHIP DEED
6/23/2003
LAND & BUILDING
64000
1026 / 0874
SPECIAL WARRANTY DEED
2/3/2003
LAND & BUILDING
0
972 / 1934
SHERIFF'S DED
7/16/1998
0
0574 / 1408
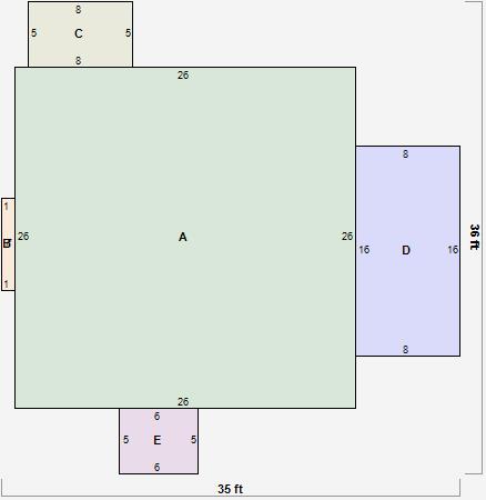
Parcel Sketches
Residential Card 1
A
MAIN
676 square feet
B
FRBAY FRAME BAY
7 square feet
C
EFP ENCL FRAME PORCH
40 square feet
D
UNFIN BSMT BASEMENT UNFINISHED 1S FR ONE STORY FRAME
128 square feet
E
OFP OPEN FRAME PORCH
30 square feet
Parcel Images
Please note:
this tab is for informational purposes only and may not show all delinquencies, see the Taxes tab for more accurate delinquent taxes due.