Elected Officials
Courts
Departments
Initiatives
Open Government
About
Login / Register
Home
/
Property & Tax Records
/
Property Records
/
Property & Tax Search
/
Parcel Profile
/
Print View
Search for Another Parcel
Parcel Profile
Historical Card
Sketches
Photos
Tax Map
Taxes
Print View
Print This Page
Address: 151 W 36 ST
Parcel: 18053037020900
Parcel Profile
Address
151 | W | 36 | ST
Street Status
PAVED | SIDEWALK
School District
CITY OF ERIE SCHOOL
Acreage
0.1980
Classification
R
Land Use Code
SINGLE FAMILY
Legal Description
151 W 36 ST IRREG
Square Feet
2288
Topo
LEVEL
Utility
ALL PUBLIC
Zoning
Please contact your municipal zoning officer
Deed Book
2017
Deed Page
004330
2026 Tax Values
Land Value / Taxable
43,900 / 43,900.00
Building Value / Taxable
119,300 / 119,300.00
Total Value / Taxable
163,200 / 163,200.00
Clean & Green
Inactive
Homestead Status
Active
Farmstead Status
Inactive
Lerta Amount
0
Lerta Expiration Year
0
Residential Data
Card 1
Style
COLONIAL
Basement
FULL
Year Built
1927
Exterior Wall
FRAME
Total Living Area
2288
Full Baths
2
Half Baths
1
Fuel Type
GAS
Heating
CENTRAL A/C
Heating System
FORCED AIR
Stories
2.0
Total Bedrooms
4
Total Family Rooms
1
Total Rooms
9
Fireplaces
1
Other Buildings & Yards
Description
Built
Width
Length
Area
FRAME OR CB DETACHED GARAGE
1927
20
20
400
Sales History
Sale Date
Type
Price
Book / Page
Other Info
3/2/2017
LAND & BUILDING
159800
2017 / 004330
DEED
5/26/1994
0
0336 / 1553
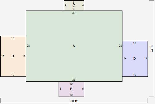
Parcel Sketches
Residential Card 1
A
MAIN
1064 square feet
B
1S FR ONE STORY FRAME
160 square feet
C
OFP OPEN FRAME PORCH
32 square feet
D
UNFIN BSMT BASEMENT UNFINISHED EFP ENCL FRAME PORCH
140 square feet
E
OFP OPEN FRAME PORCH
60 square feet
Parcel Images
Please note:
this tab is for informational purposes only and may not show all delinquencies, see the Taxes tab for more accurate delinquent taxes due.