Elected Officials
Courts
Departments
Initiatives
Open Government
About
Login / Register
Home
/
Property & Tax Records
/
Property Records
/
Property & Tax Search
/
Parcel Profile
/
Print View
Search for Another Parcel
Parcel Profile
Historical Card
Sketches
Photos
Tax Map
Taxes
Print View
Print This Page
Address: 201 W 36 ST
Parcel: 18053037030100
Parcel Profile
Address
201 | W | 36 | ST
Street Status
PAVED | SIDEWALK
School District
CITY OF ERIE SCHOOL
Acreage
0.2237
Classification
R
Land Use Code
SINGLE FAMILY
Legal Description
201 W 36 ST 61.15 X 115.05 IRR
Square Feet
2195
Topo
LEVEL
Utility
ALL PUBLIC
Zoning
Please contact your municipal zoning officer
Deed Book
2024
Deed Page
007386
2026 Tax Values
Land Value / Taxable
44,800 / 44,800.00
Building Value / Taxable
80,200 / 80,200.00
Total Value / Taxable
125,000 / 125,000.00
Clean & Green
Inactive
Homestead Status
Active
Farmstead Status
Inactive
Lerta Amount
0
Lerta Expiration Year
0
Residential Data
Card 1
Style
CAPE
Basement
FULL
Year Built
1931
Exterior Wall
BRICK
Total Living Area
2195
Full Baths
2
Half Baths
0
Fuel Type
GAS
Heating
CENTRAL
Heating System
FORCED AIR
Stories
1.0
Total Bedrooms
4
Total Family Rooms
1
Total Rooms
8
Fireplaces
1
Other Buildings & Yards
Description
Built
Width
Length
Area
FRAME OR CB DETACHED GARAGE
1931
21
21
441
Sales History
Sale Date
Type
Price
Book / Page
Other Info
5/16/2024
LAND & BUILDING
0
2024 / 007386
DEED
12/29/2016
LAND & BUILDING
117000
2016 / 028422
SPECIAL WARRANTY DEED
3/2/2000
LAND & BUILDING
90000
690 / 547
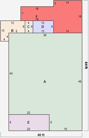
Parcel Sketches
Residential Card 1
A
MAIN
1568 square feet
B
MA STOOP/TERR MAS STOOP
88 square feet
C
EMP ENCL MASONRY PORCH
24 square feet
D
UNFIN BSMT BASEMENT UNFINISHED OFP OPEN FRAME PORCH
60 square feet
E
MA_PT CONC/MAS PATIO
160 square feet
F
WDDCK WOOD DECKS
336 square feet
Parcel Images