Elected Officials
Courts
Departments
Initiatives
Open Government
About
Login / Register
Home
/
Property & Tax Records
/
Property Records
/
Property & Tax Search
/
Parcel Profile
/
Print View
Search for Another Parcel
Parcel Profile
Historical Card
Sketches
Photos
Tax Map
Taxes
Print View
Print This Page
Address: 3852 ELIOT RD
Parcel: 18053038010200
Parcel Profile
Address
3852 | ELIOT | RD
Street Status
PAVED
School District
CITY OF ERIE SCHOOL
Acreage
0.1111
Classification
R
Land Use Code
SINGLE FAMILY
Legal Description
3852 ELIOT RD 43.5X110
Square Feet
924
Topo
LEVEL
Utility
ALL PUBLIC
Zoning
Please contact your municipal zoning officer
Deed Book
1634
Deed Page
0267
2026 Tax Values
Land Value / Taxable
40,600 / 40,600.00
Building Value / Taxable
88,510 / 88,510.00
Total Value / Taxable
129,110 / 129,110.00
Clean & Green
Inactive
Homestead Status
Active
Farmstead Status
Inactive
Lerta Amount
0
Lerta Expiration Year
0
Residential Data
Card 1
Style
CAPE
Basement
FULL
Year Built
1938
Exterior Wall
ALUMINUM/VINYL
Total Living Area
924
Full Baths
1
Half Baths
1
Fuel Type
GAS
Heating
CENTRAL A/C
Heating System
FORCED AIR
Stories
1.0
Total Bedrooms
2
Total Family Rooms
1
Total Rooms
5
Fireplaces
1
Other Buildings & Yards
No OBY Data Found
Sales History
Sale Date
Type
Price
Book / Page
Other Info
6/19/1986
0
1634 / 0267
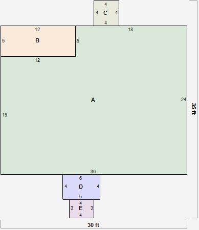
Parcel Sketches
Residential Card 1
A
MAIN
660 square feet
B
OFP OPEN FRAME PORCH
60 square feet
C
MA STOOP/TERR MAS STOOP
16 square feet
D
EFP ENCL FRAME PORCH
24 square feet
E
MA STOOP/TERR MAS STOOP
12 square feet
Parcel Images
Please note:
this tab is for informational purposes only and may not show all delinquencies, see the Taxes tab for more accurate delinquent taxes due.