Elected Officials
Courts
Departments
Initiatives
Open Government
About
Login / Register
Home
/
Property & Tax Records
/
Property Records
/
Property & Tax Search
/
Parcel Profile
/
Print View
Search for Another Parcel
Parcel Profile
Historical Card
Sketches
Photos
Tax Map
Taxes
Print View
Print This Page
Address: 4017 MYRTLE ST
Parcel: 18053039010800
Parcel Profile
Address
4017 | MYRTLE | ST
Street Status
PAVED
School District
CITY OF ERIE SCHOOL
Acreage
0.1033
Classification
R
Land Use Code
SINGLE FAMILY
Legal Description
4017 MYRTLE ST 45X100.2
Square Feet
1940
Topo
LEVEL
Utility
ALL PUBLIC
Zoning
Please contact your municipal zoning officer
Deed Book
2022
Deed Page
019553
2026 Tax Values
Land Value / Taxable
39,700 / 39,700.00
Building Value / Taxable
51,090 / 51,090.00
Total Value / Taxable
90,790 / 90,790.00
Clean & Green
Inactive
Homestead Status
Inactive
Farmstead Status
Inactive
Lerta Amount
0
Lerta Expiration Year
0
Residential Data
Card 1
Style
COLONIAL
Basement
FULL
Year Built
1929
Exterior Wall
BRICK
Total Living Area
1940
Full Baths
1
Half Baths
1
Fuel Type
GAS
Heating
CENTRAL
Heating System
HOT WATER
Stories
2.0
Total Bedrooms
3
Total Family Rooms
0
Total Rooms
7
Fireplaces
0
Other Buildings & Yards
Description
Built
Width
Length
Area
FRAME OR CB DETACHED GARAGE
1930
20
20
400
Sales History
Sale Date
Type
Price
Book / Page
Other Info
9/6/2022
LAND & BUILDING
0
2022 / 019553
SPECIAL WARRANTY DEED
12/20/1967
0
0973 / 0733
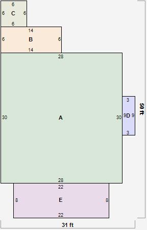
Parcel Sketches
Residential Card 1
A
MAIN
840 square feet
B
UNFIN BSMT BASEMENT UNFINISHED 1SMAS MASONRY
84 square feet
C
MA STOOP/TERR MAS STOOP
36 square feet
D
OFP OPEN FRAME PORCH
27 square feet
E
UNFIN BSMT BASEMENT UNFINISHED 1SMAS MASONRY
176 square feet
Parcel Images
Please note:
this tab is for informational purposes only and may not show all delinquencies, see the Taxes tab for more accurate delinquent taxes due.